Продам 3-комнатную квартиру
, Тургенево, Коновальця вул.
ID: 5254323
3 738 700 грн
(49 193 за м2)
Кол-во комнат
3
Этаж
8/8
Тип стен
кирпич
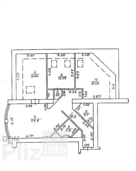
Общая площадь
76 м2
Кухня площадь
24.6 м2
Состояние
жилое
Тип недвижимости
Вторичный рынок
Пропоную простору квартиру по вул. Коновальця 77, Івано-Франківськ, центр міста, з вікна кухні видно ратушу, будинок побудований у 2000 рр. Хороший район з добре розвинутою інфраструктурою. Поруч обласна дитяча лікарня, міська дитяча лікарня, роддом, супермаркет Велмарт, розважальні заклади, поштові відділення, банки, магазини, навчальні заклади та садочки. Квартира розташована на 8/8 поверсі, ліфт працює, над житлом (площа коридору, ванни і туалету - вони роздільні) є комора. Площа квартири - 76 м кв., Три просторі окремі кімнати з добротним ремонтом, підігрів підлоги є в кухні, коридорі і ванні з туалетом.. Кухня - 24,6 м кв., з технікою та меблями, неймовірно красива і велика. У вітальні є камін, підключено телебачення та інтернет і потайна гардероба. Спальня укомплектована повноцінним двоспальним ліжком та шафою, комодом, дзеркало. Дитяча кімната теж обмебльована і має гардеробну. Санвузол роздільний.
Создано : 28.11.2025
3 738 700 грн
(49 193 за м2)
88 610 $
(1 166 за м2)
Оксана
посредник
Создано : 28.11.2025
Просмотренные
Продається затишна квартира в сучасному житловому комплексі “Манхеттен” в Івано-Франківську. Будинок розташований у чудовій локації з розвиненою інфраструктурою: зупинка громадського транспорту, кавярні, аптеки...
28.11.2025
Комнат
3
Этаж:
9/16
Общая
79 м2
Кухня
14.8 м2
3 375 424 грн
Продам трьохкімнатну квартиру в ЖК «Парковий маєток» – 67 м квадратних 10 поверх з 10. З комфортним плануванням. Продається простора та світла трьохкімнатна квартира у сучасному житловому комплексі «Парковий м...
28.11.2025
Комнат
3
Этаж:
10/10
Общая
67 м2
Кухня
9.77 м2
2 278 411 грн
Продається 3-кімнатна квартира на вулиці симоненка Площа: 71,7 кв.м Поверх: 3/9 Кімнати: 3 Стан: готова до проживання Поруч є школа,магазини, зупинки громадського транспорту...
28.11.2025
Комнат
3
Этаж:
3/9
Общая
71.7 м2
Кухня
8.7 м2
2 826 918 грн
Продається простора 3-кімнатна квартира біля парку! #127795; Світла, затишна оселя з трьома окремими спальнями та зручним виходом у двір — ідеальний варіант для сімї з дітьми або тих, хто цінує комфорт і спок...
28.11.2025
Комнат
3
Этаж:
6/8
Общая
84 м2
Кухня
24 м2
6 961 812 грн
Популярное на сайте

ОдессаОдесса

КиевКиев














