Продається 1-кімнатна квартира
Київ, р-н Печерський, Старонаводницька вул., 16б
ID: 5256015
4 641 208 грн
(100 896 за м2)
Кіл-ть кімнат
1
Поверх
8/10
Тип стін
цегла
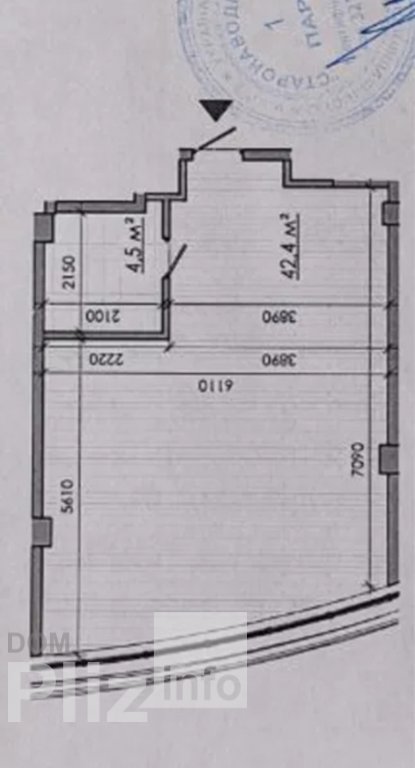
Загальна площа
46 м2
Площа кухні
40 м2
Стан
житлове
Тип нерухомості
Вторинний ринок
Продам 1кімнатну квартиру в жк Intergal city Старонаводницька 16б. Вежа Б, 8 поверх. Ведеться активне будівництво, введення в експлуатацію 2 квартал 2026р. Intergal City- один із найкращих та найсучасніших жк в центрі Києва. Житловий комплекс буде обладнаний центральною системою кондиціонування та автономною газовою генерацією електроенергії. Чудова інфраструктура центру Спеціадлст Світлана
Оновлене: 29.11.2025
4 641 208 грн
(100 896 за м2)
110 000 $
(2 391 за м2)
АН КУБ
посередник
Оновлене: 29.11.2025
Переглянуті
Продаётся однокомнатная квартира. Печерский район, улица Маккейна Джона, 7, метро Зверинецкая (Дружбы народов), ЖК Central Park (Централ Парк) (сдан)Продам 1к квартиру в ЖК Централ парк.Будинок підключений до б...
20.11.2025
Кімнат
1
Поверх:
10/25
Загальна
52 м2
Житлова
14 м2
Кухня
19 м2
7 130 583 грн
Продажа однокомнатной квартиры в ЖК Французский квартал 2 по ул. Предславинская, Печерск. Площадь 53,9 м2, расположена на 6 этаже 8 этажного дома. Квартира с дизайнерским качественным ремонтом. Вся необходимая ...
11.02.2022
Кімнат
1
Поверх:
6/8
Загальна
53.9 м2
Кухня
19 м2
9 619 958 грн
Продажа однокомнатной квартиры в ЖК Французский Квартал-2 по ул. Предславинская,53, Печерск. Площадь 56,1 м2, 19/21 этажного дома. Состояние после строителей. Дом сдан и заселен. На территории есть все необходи...
11.02.2022
Кімнат
1
Поверх:
19/21
Загальна
56 м2
Житлова
18.5 м2
Кухня
22.5 м2
6 961 812 грн
Продажа однокомнатной квартиры в ЖК Французский квартал 2 по улице Предславинская, 53, Печерск. Расположена на 6 этаже 20 этажного дома, общей площадью 40,6 м2.В квартире сделан качественный дизайнерский ремонт...
11.02.2022
Кімнат
1
Поверх:
6/20
Загальна
40 м2
Кухня
15 м2
6 539 884 грн
Популярне на сайті

ОдесаОдеса

КиївКиїв











