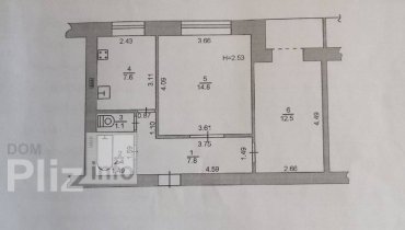
Продається 2-кімнатна квартира
Чорноморськ, Парусная (Героев Сталинграда) ул.
ID: 5258027
1 693 652 грн
(29 713 за м2)
Кіл-ть кімнат
2
Поверх
7/16
Тип стін
цегла
Загальна площа
57 м2
Житлова площа
26.1 м2
Площа кухні
13.6 м2
Стан
житлове
Тип нерухомості
Вторинний ринок
В продаже двухкомнатная квартира общей площадью 57кв.м. Просторная кухня с панорамным окном с потрясающим видом на закат. Две спальни раздельный санузел облицован плиткой, стены обои, пол ламинат, квартира теплая и уютная. Большая лоджия остеклена металлопластиком. Просторный тамбур, два лифта. Благоустроенный двор с детскими площадками. Развитая инфраструктура. Посредникам, просьба не беспокоить.
Оновлене: 02.12.2025
1 693 652 грн
(29 713 за м2)
40 000 $
(702 за м2)
Премьер Данченко, 8
посередник
Оновлене: 02.12.2025
Переглянуті
Продается двухкомнатная чешка на среднем этаже! Удобная планировка, комнаты просторные, раздельные. Санузел раздельный, заменены трубы, окна металлопластиковые. Лоджия застеклена. Окна во двор, частично вид мор...
02.12.2025
Кімнат
2
Поверх:
7/9
Загальна
49 м2
Житлова
27.3 м2
Кухня
7.6 м2
1 757 164 грн
редлагается к продаже светлая и уютная двухкомнатная квартира с ухоженным состоянием и продуманной планировкой. Дом состоит из двух отдельных комнат и просторной кухни, что создает комфортное пространство для п...
02.12.2025
Кімнат
2
Поверх:
2/17
Загальна
67 м2
Житлова
42 м2
Кухня
11.5 м2
2 540 478 грн
В продаже двухкомнатная квартира - лаборатория в самом сердце центре г. Черноморск. В квартире выполнен новый современный ремонт в светлых тонах. Комнаты раздельные, кухня оборудована всей необходимой мебелью. ...
02.12.2025
Кімнат
2
Поверх:
1/5
Загальна
47.6 м2
Житлова
29.6 м2
Кухня
5.7 м2
1 990 041 грн
В продаже двухкомнатная квартира с свежим капитальным ремонтом, сделана кухня студия, и отдельная спальня, квартира двусторонняя, светлая и уютная, на среднем этаже в середине дома! Заменена вся проводка и сант...
02.12.2025
Кімнат
2
Поверх:
2/5
Загальна
47 м2
Житлова
28 м2
Кухня
6 м2
1 905 359 грн
Популярне на сайті

ОдесаОдеса

КиївКиїв
















