Сдам долгосрочно офисное помещение
Киев, р-н Подольский, Сагайдачного Петра ул.
ID: 4778132
1 678 321 грн
Кол-во помещений
1
Этаж
8/9
Тип стен
кирпич
Общая площадь
1296 м2
Состояние
жилое
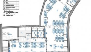
БЕЗ КОМИССИИ!!! Аренда офиса 1296 м2 (нежилой фонд, в том числе терраса 201,6 м2) по ул. Петра Сагайдачного (Подольский район). Офис расположен на 8-этаже и имеет открытую планировку. Состояние - после строителей (предоставляются ремонтные каникулы), все необходимые коммуникации заведены. Офис оборудован пожарной и охранной системами безопасности, установлена центральная приточно-вытяжная система вентиляции и кондиционирования. В пешей доступности ст. метро Почтовая площадь (2 минуты, или 140 метров), также есть подземный паркинг. Доступ - 24/7. Цена аренды указана без учета НДС. Дополнительно оплачиваются коммунальные и эксплуатационные платежи. Номер объявления на сайте компании: RC-155-618-DP.
Создано : 11.02.2022
1 678 321 грн
38 880 $
Виталий Олегович
посредник
Создано : 11.02.2022
Просмотренные
Аренда современного офиса в центре Киева на Подоле в Бизнес Центре класса " В + " по адресу улица Верхний Вал. Этаж 3/5 этажного нежилого здания. Полезная площадь офиса 1078.5 м2. Арендуемая площадь офиса 1 240...
03.01.2026
Этаж:
3/5
Общая
1300 м2
884 917 грн
Аренда просторного офиса в центре Киева в Бизнес Центре класса " А " улица Игоревская. Этаж 3/6 этажного нежилого здания. Общая площадь офиса 1 320 м2. Фотографии и планировка соответствуют реальности. Планиров...
03.01.2026
Этаж:
3/5
Общая
1300 м2
971 251 грн
Аренда современного офиса в центре Киева на Подоле по адресу Контрактовая площадь. Этаж 2-3/3 этажного нежилого здания. Общая площадь офиса 1 300 м2. Фотографии и планировка соответствуют реальности. Планировка...
03.01.2026
Этаж:
2/3
Общая
1300 м2
949 667 грн
Аренда видового офиса в центре Киева в Бизнес Центре класса " А + " по адресу улица Сагайдачного. Этаж 8/9 этажного нежилого здания. Полезная площадь офиса 912 м2. Площадь террасы 168 м2. Арендуемая площадь 1 2...
03.01.2026
Этаж:
8/9
Общая
1300 м2
1 454 718 грн
Популярное на сайте

ОдессаОдесса

КиевКиев














