Сдам долгосрочно офисное помещение
                                    Киев, р-н Шевченковский, Хмельницкого Богдана ул.                                
                                
                                    ID: 4778248                                
                            
                                                                                214 409 грн 
                                                                            
                                    
                                                            
                                                                                           Кол-во помещений                                                                                    
                                        11
                                    
                                                                                           Этаж                                            
                                        
                                        6/7
                                    Тип стен
                                        кирпич
                                    Общая площадь
                                        
                                            340 м2                                        
                                    
                                            Состояние                                        
                                        
                                            жилое                                        
                                    
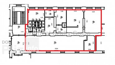
                           Аренда офиса 340 м2 в центре Шевченковского района по улице Богдана Хмельницкого. Помещение расположено на 6-м этаже офисного центра. Планировка: 10 кабинетов, помещение под кухню, 2 с/у. Занимает весь этаж, оснащено системой вентиляции, кондиционирования, пожарной сигнализацией, СКД, круглосуточной физической охраной. Стоимость аренды указана без учета НДС, дополнительно оплачиваются эксплуатационные и коммунальные платежи. На территории своя парковка. Номер объявления на сайте компании: RC-154-658-DP.                        
                        
                        
                                                            
                                                     
                        
                                Создано : 11.02.2022                            
                        
                                                                                214 409 грн 
                                                                            
                                    
                                    
                                                                                        5 100 $
                                                                                    
                                        
                                    Якименко Людмила Александровна
                                посредник
                                
                            
                            Создано : 11.02.2022                        
                        Просмотренные
                        
               Аренда просторного офиса в центре Киева в Бизнес Центре класса " А " по адресу улица Богдана Хмельницкого. Этаж 4/8 этажного нежилого здания. Полезная площадь офиса 285 м2. Арендуемая площадь 339.15 м2 ( 19 % к...            
                        
                
                03.11.2025            
        Этаж:
                        
                          4/8
                    Общая
                            340 м2
                        
                            363 654 грн
                        
                        
                        
                                    
               Аренда просторного офиса в центре Киева в Бизнес центре класса " В + " по адресу улица Николая Пимоненко. Этаж 3/6 этажного нежилого здания. Полезная площадь офиса 306.70 м2. Арендуемая площадь 343.50 м2 ( 12 %...            
                        
                
                03.11.2025            
        Этаж:
                        
                          3/6
                    Общая
                            350 м2
                        
                            231 225 грн
                        
                        
                        
                                    
               Аренда современного офиса в центре Киева в ЖК бизнес класса по адресу улица Бульварно-Кудрявская. Этаж 7/19 этажного здания. Общая площадь офиса 350 м2. Фотографии и планировка соответствуют реальности. Планиро...            
                        
                
                03.11.2025            
        Этаж:
                        
                          7/19
                    Общая
                            350 м2
                        
                            630 614 грн
                        
                        
                        
                                    
               Аренда просторного офиса в центре Киева в Бизнес Центре класса " В + " по адресу улица Бульварно-Кудрявская. Этаж 1/5 этажного нежилого здания. Общая площадь офиса 336.30 м2. Фотографии и планировка соответству...            
                        
                
                03.11.2025            
        Этаж:
                        
                          1/5
                    Общая
                            340 м2
                        
                            227 021 грн
                        
                        
                        
                                    
     Популярное на сайте
    
    
ОдессаОдесса
                
                
            
КиевКиев
                
                
            
                                                
                                                
                                                
                                                
                                                
                                                
                                                






        





