Сдам долгосрочно офисное помещение
Киев, р-н Голосеевский, Ахтырский пер., 7
ID: 5201909
239 952 грн
Кол-во помещений
4
Этаж
3/4
Тип стен
кирпич
Общая площадь
430 м2
Состояние
жилое
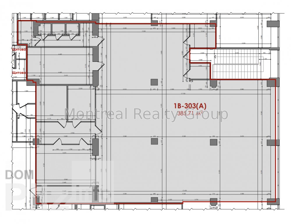
Аренда просторного офиса в Бизнес Центре класса " В + " по адресу Ахтырский переулок. Этаж 3/4 этажного нежилого здания. Полезная площадь офиса 385.71 м2. Арендуемая площадь 432 м2 ( 12 % коэффициент BOMA ). Фотографии и планировка соответствуют реальности. Планировка - рабочие зоны + кабинеты/переговорные, место для кухни, санузлы, кладовки, серверная. Состояние - хороший офисный ремонт. Офис оснащен всем необходимым для комфортной и безопасной работы. Отличная транспортная развязка, в пешей доступности остановка общественного транспорта и станция метро Васильковская 10 минут пешком.Вакантность в этом БЦ - 71 м2, 76 м2, 175 м2, 277 м2, 334 м2, 431 м2, 432 м2, 436 м2, 580 м2, 610 м2, 763 м2, 912 м2, 125 м2, 1 455 м2, 1 879 м2.Оснащения Бизнес Центра:1. Система приточно-вытяжной вентиляции.2. Система кондиционирования.3. Автономное отопление.4. Оптоволоконные линии связи.5. Система контроля доступа.6. Противопожарная система безопасности.7. Круглосуточная физическая охрана.8. Видеонаблюдение (периметр, холл, лифты, помещения общего пользования, парковка).9. Лифты - 6 шт., фирмы OTIS.10. Большая наземная парковка.11. Генератор.Коммерческие условия:Арендная ставка - 13.22 $/м2 с эксплуатации + НДС + коммунальные услуги.Номер оголошення на сайті компанії: RC-135-540-DP.
Обновлено: 03.10.2025
239 952 грн
5 750 $

Радион Попов
посредник
Обновлено: 03.10.2025
Просмотренные
Аренда офиса в центре Киева в Бизнес Центре класса " А " по адресу Саксаганского. Этаж 3/10 этажного нежилого здания. Полезная площадь офиса 374.20 м2. Арендуемая площадь 430.33 м2 ( 15 % коэффициент BOMA ). Фо...
03.10.2025
Этаж:
3/10
Общая
430 м2
281 683 грн
Аренда современного офиса в центре Киева в Бизнес Центре класса " В + " по адресу улица Семьи Праховых ( Гайдара ). Этаж 5/7 этажного нежилого здания. Полезная площадь офиса 371.8 м2 + 22.6 м2 площадь террасы. ...
03.10.2025
Этаж:
5/7
Общая
440 м2
406 875 грн
Аренда просторного офиса в Бизнес Центре класса " В + " по адресу Ахтырский переулок. Этаж 1/4 этажного нежилого здания. Полезная площадь офиса 389.95 м2. Арендуемая площадь 436.74 м2 ( 12 % коэффициент BOMA )....
03.10.2025
Этаж:
1/4
Общая
440 м2
277 510 грн
Аренда стильного офиса в Бизнес Центре класса " В + " по адресу Ахтырский переулок. Этаж 2/4 этажного нежилого здания. Полезная площадь офиса 385.17 м2. Арендуемая площадь 431.39 м2 ( 12 % коэффициент BOMA ). Ф...
03.10.2025
Этаж:
2/4
Общая
430 м2
237 866 грн
Популярное на сайте


Одесса


Киев