Сдам долгосрочно офисное помещение
Киев, р-н Голосеевский, Ахтырский пер., 7
ID: 5201938
713 824 грн
Кол-во помещений
5
Этаж
1/4
Тип стен
кирпич
Общая площадь
1100 м2
Состояние
жилое
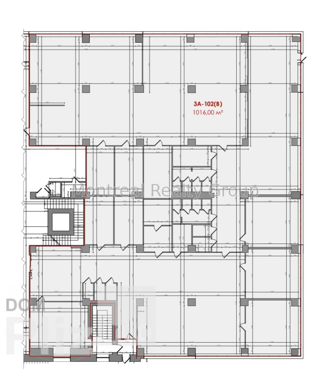
Аренда стильного офиса в Бизнес Центре класса " В + " по адресу Ахтырский переулок. Этаж 1/4 этажного нежилого здания. Полезная площадь офиса 1 016 м2. Арендуемая площадь 1 137.92 м2 ( 12 % коэффициент BOMA ). Фотографии и планировка соответствуют реальности. Планировка - open space + рабочие зоны + кабинеты/переговорные, место для кухни, санузлы, кладовки, серверная. Состояние - хороший офисный ремонт. Офис оснащен всем необходимым для комфортной и безопасной работы. Отличная транспортная развязка, в пешей доступности остановка общественного транспорта и станция метро Васильковская 10 минут пешком.Вакантность в этом БЦ - 71 м2, 76 м2, 175 м2, 277 м2, 334 м2, 431 м2, 432 м2, 436 м2, 580 м2, 610 м2, 763 м2, 912 м2, 125 м2, 1 455 м2, 1 879 м2.Оснащения Бизнес Центра:1. Система приточно-вытяжной вентиляции.2. Система кондиционирования.3. Автономное отопление.4. Оптоволоконные линии связи.5. Система контроля доступа.6. Противопожарная система безопасности.7. Круглосуточная физическая охрана.8. Видеонаблюдение (периметр, холл, лифты, помещения общего пользования, парковка).9. Лифты - 6 шт., фирмы OTIS.10. Большая наземная парковка.11. Генератор.Коммерческие условия:Арендная ставка - 15 $/м2 с эксплуатации + НДС + коммунальные услуги.Номер оголошення на сайті компанії: RC-180-199-DP.
Обновлено: 03.10.2025
713 824 грн
17 100 $

Радион Попов
посредник
Обновлено: 03.10.2025
Просмотренные
Сдаётся офис помещение. Голосеевский район, проспект Голосеевский, 132, метро Выставочный центрЦілий поверх можливостей у серці Голосіївського району!Пропонуємо в оренду ексклюзивний офісний простір площею 900 ...
22.10.2025
Этаж:
3/16
Общая
900 м2
415 000 грн
Сдаётся офис помещение. Голосеевский район, проспект Голосеевский, 132, метро Выставочный центрОренда офісу 450 м.кв. в бізнес центрі РЕЛЕ в Голосіївському районі за адресою: проспект Голосіївський, 132, метро ...
22.10.2025
Этаж:
6/16
Общая
450 м2
298 800 грн
Оренда офісу в БЦ Palladium City. Оренда сучасного офісу 321 м2. Планування для компанії на 40–50 робочих місць. Приміщення займає весь поверх, здається меблями на 40 робочих місць Пряма вхідна група з ліфта —...
17.10.2025
Этаж:
13/24
Общая
321 м2
213 730 грн
Діловий центр міста, супер локація поруч три станції метро Олімпійська, Палац спорту, Площа Українських героїв. Оренда сучасного офісу в стилі лофт. Площа 500 м2, перший поверх, окремий вхід, власна тераса, па...
17.10.2025
Этаж:
1/5
Общая
500 м2
417 441 грн
Популярное на сайте


Одесса


Киев