Продам офисное помещение
Киев, р-н Печерский, Грушевского Михаила ул., 9Б
ID: 5202067
376 928 897 грн
(314 107 за м2)
Кол-во помещений
20
Этаж
6/12
Тип стен
кирпич
Общая площадь
1200 м2
Состояние
жилое
Тип недвижимости
Офисное помещение
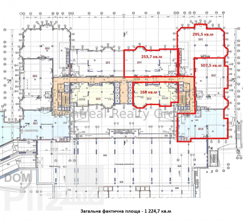
Продажа просторного офиса в центре Киева в Бизнес Центре класса " А " по адресу улица Михаила Грушевского. Этаж 6/12 этажного здания. Половина этажа. Общая площадь офиса 1 224.70 м2. Фотографии и планировка соответствуют реальности. Состояние - стильный ремонт. Офис оснащен всем необходимым для комфортной и безопасной работы. Офис оснащен всем необходимым для комфортной и безопасной работы. Отличная транспортная развязка, в пешей доступности остановка общественного транспорта и станция метро Арсенальная 5 минут пешком.Оснащения Бизнес Центра:1. Система приточно-вытяжной вентиляции.2. Система кондиционирования.3. Вентиляторные конвекторы "FANCOIL".4. Автономное отопление.5. Оптоволоконные линии связи.6. Система контроля доступа в здании.7. Система противопожарной безопасности.8. Круглосуточная физическая охрана.9. Видеонаблюдение (периметр, холл, лифты, места общего пользования, парковка).10. Лифты - 13 шт., фирмы OTIS.11. Подземный паркинг и наземная парковка.12. Генератор.Цена продажи - 9 053 000 $ за помещение и паркинг.Номер оголошення на сайті компанії: SC-155-752-DP.
Обновлено: 03.10.2025
376 928 897 грн
(314 107 за м2)
9 053 000 $
(7 544 за м2)

Радион Попов
посредник
Обновлено: 03.10.2025
Просмотренные
Продажа стильного офиса в центре Киева по адресу улица Василия Тютюнника ( Анри Барбюса ). Этаж 2/23 этажного здания. Общая площадь офиса 100 м2. Фоторгафии и планировка соответствуют реальности. Планировка - o...
03.10.2025
Этаж:
2/23
Общая
100 м2
18 736 110 грн
Продажа современного офиса в центре Киева по адресу улица Ивана Мазепы. Этаж 2/5 этажного здания. Общая площадь офиса 60 м2. Фотографии и планировка соответствуют реальности. Планировка - open space + скайп ком...
03.10.2025
Этаж:
2/5
Общая
60 м2
12 449 104 грн
Продажа отдельно стоящего офисного здания в центре Киева по адресу улица Эспланадная. 4 этажа + цоколь и мансарда. Общая площадь 1 410 м2. Фотографии и планировки соответствуют реальности. Планировка - open spa...
03.10.2025
Этаж:
1/5
Общая
1400 м2
249 814 800 грн
Продажа современного офиса в центре Киева по адресу улица Эспланадная. Этаж 5/5 этажного здания. Общая площадь офиса 220 м2. Фотографии и планировка соответствуют реальности. Планировка - open space + рабочие з...
03.10.2025
Этаж:
5/5
Общая
220 м2
33 308 640 грн
Популярное на сайте


Одесса


Киев