Сдам долгосрочно офисное помещение
Киев, р-н Подольский, Верхний Вал ул., 10
ID: 5202275
576 069 грн
Кол-во помещений
10
Этаж
2/5
Тип стен
кирпич
Общая площадь
800 м2
Состояние
жилое
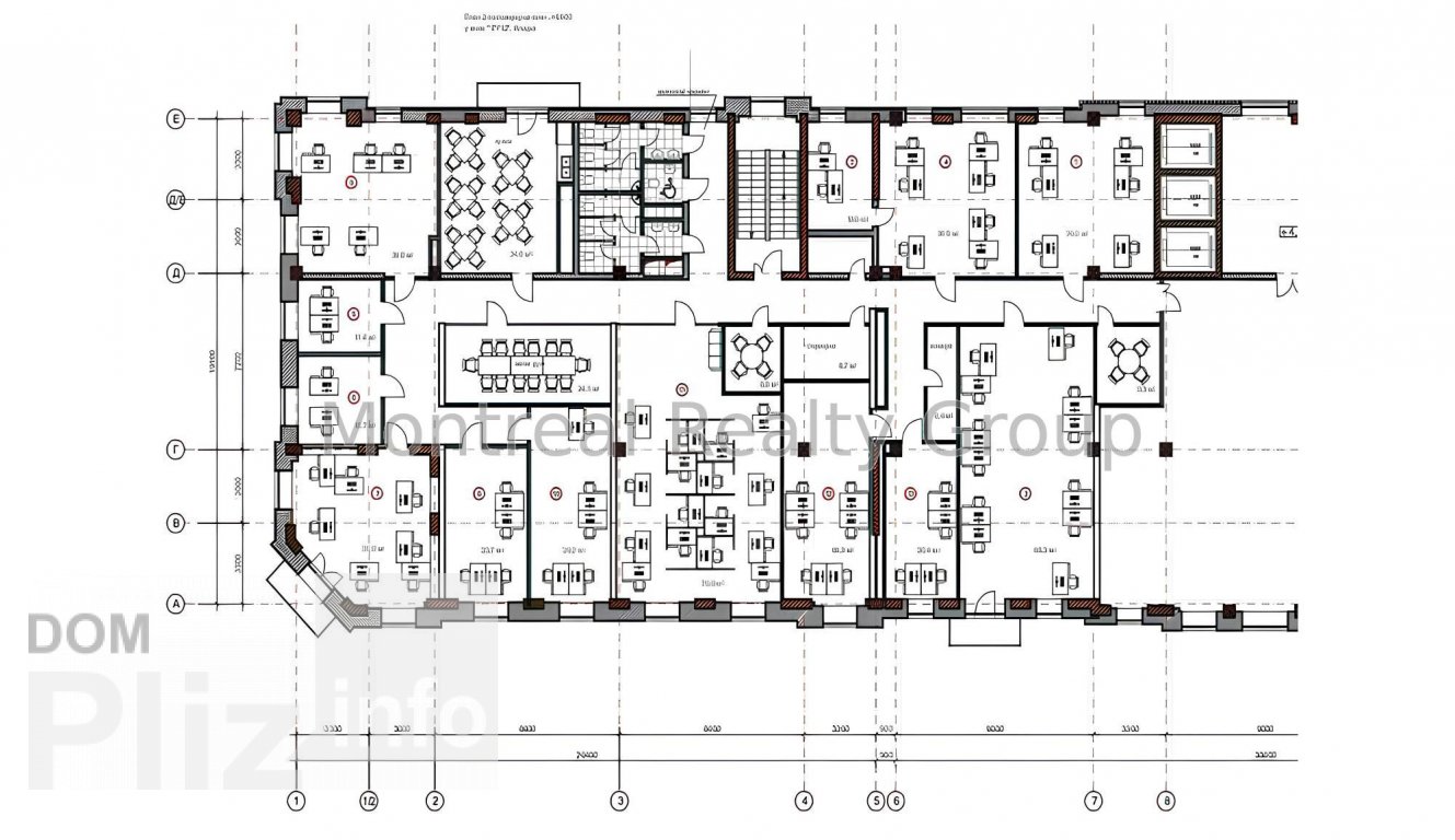
Аренда современного офиса в центре Киева на Подоле в Бизнес Центре класса " В + " по адресу улица Верхний Вал. Этаж 2/5 этажного нежилого здания. Полезная площадь офиса 706 м2. Арендуемая площадь офиса 811.9 м2 ( 10 % коэффициент BOMA ). Фотографии и планировка соответствуют реальности. Планировка - рабочие зоны + кабинеты/переговорные, место для кухни, санузлы, кладовки, серверная. Состояния - современный ремонт. Офис оснащен всем необходимым для комфортной и безопасной работы. Отличная транспортная развязка, в пешей доступности остановка обществееного транспорта и станция метро Контрактовая Площадь 5 минут пешком.Вакантность в этом БЦ - 250 м2, 1 132 м2.Оснащения Бизнес Центра:1. Система кондиционирование при помощи фанкойлов.2. Система приточно-вытяжной вентиляции.3. Полный климат-контроль HVAC.4. Автономное отопления.5. Оптоволоконные линии связи.6. Система контроля доступа в здании.7. Противопожарная система безопасности.8. Круглосуточная физическая охрана.9. Видеонаблюдение.10. Лифты - 5 шт. фирмы OTIS.11. Подземный паркинг и наземная парковка.12. Генератор.Коммерческие условия:Арендная ставка - 17 $/м2 с эксплуатации + НДС + коммунальные услуги.Номер оголошення на сайті компанії: RC-170-885-DP.
Обновлено: 03.10.2025
576 069 грн
13 800 $

Радион Попов
посредник
Обновлено: 03.10.2025
Просмотренные
Аренда просторного офиса в Бизнес Центре класса " В " по адресу улица Новоконстантиновская. Этаж 2/3 этажного нежилого здания. Полезная площадь офиса 662.40 м2. Арендуемая площадь 794.88 м2 ( 20 % коэффициент B...
03.10.2025
Этаж:
2/3
Общая
800 м2
233 767 грн
БЕЗ КОМИССИИ! Аренда отдельно-стоящего здания 790 м2 по улице Петра Сагайдачного. Нежилой Фонд, в здании 3 этажа, помещение с ремонтом. Планировка смешанная, холл, зона рецепции, два кабинета директора, меблиро...
11.02.2022
Этаж:
1/3
Общая
790 м2
659 557 грн
Популярное на сайте


Одесса


Киев