Сдам долгосрочно офисное помещение
Киев, р-н Шевченковский, Франко Ивана ул., 11
ID: 5202405
417 441 грн
Кол-во помещений
12
Этаж
2/7
Тип стен
кирпич
Общая площадь
380 м2
Состояние
жилое
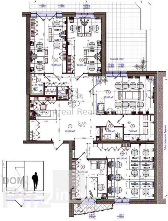
Аренда современного офиса в центре Киева в клубном доме премиум по адресу улица Ивана Франка. Этаж 2/7 этажного здания. Общая площадь офиса 375 м2. Фотографии и планировка соответствуют реальности. Планировка - open space + рабочие зоны + кабинеты/переговорные, ресепшен, кухня, санузлы, кладовки, серверная, терраса. Состояния - современный ремонт. Офис оснащен всем необходимым для комфортной и безопасной работы. Отличная транспортная развязка, в пешей доступности остановка общественного транспорта и станции метро Золотые Ворота и Университет до 10 минут пешком.Коммерческие условия:Арендная ставка - 10 000 $ + коммунальные услуги.Номер оголошення на сайті компанії: RC-210-791-DP.
Обновлено: 03.10.2025
417 441 грн
10 000 $

Радион Попов
посредник
Обновлено: 03.10.2025
Просмотренные
Аренда современного офиса в центре Киева в Бизнес Центре класса " В " по адресу улица Владимирская. Этаж 4/8 этажного нежилого здания. Общая площадь офиса 374.75 м2. Фотографии и планировка соответствуют реальн...
03.10.2025
Этаж:
4/8
Общая
380 м2
363 174 грн
Аренда современного офиса в центре Киева в Бизнес центре класса " В + " по адресу улица Николая Пимоненко. Этаж 5/6 этажного нежилого здания. Полезная площадь офиса 337.37 м2. Арендуемая площадь 377.85 м2 ( 12 ...
03.10.2025
Этаж:
5/6
Общая
380 м2
233 767 грн
Аренда просторного офиса в центре Киева в Бизнес центре класса " В + " по адресу улица Николая Пимоненко. Этаж 4/6 этажного нежилого здания. Полезная площадь офиса 327 м2. Арендуемая площадь 366.24 м2 ( 12 % ко...
03.10.2025
Этаж:
4/6
Общая
370 м2
225 418 грн
Аренда офиса 375 м2 в новом бизнес-центре по улице Глубочицкая. Занимает весь третий этаж, планировка - 5 зон open space, 5 санузлов. Состояние ремонта - под чистовую отделку. Базовый ремонт с учетом пожеланий ...
11.02.2022
Этаж:
3/4
Общая
375 м2
112 500 грн
Популярное на сайте


Одесса


Киев