Сдам долгосрочно офисное помещение
Киев, р-н Оболонский, Бандери
ID: 5241409
500 грн
Этаж
2/3
Тип стен
кирпич
Общая площадь
905 м2
Состояние
жилое
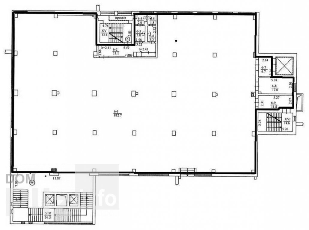
Предлагается в аренду офисное помещение 905,00 кв.м. метро Почайна. Офис открытого типа. 2 этаж. С ремонтом. Оборудовано приточно-вытяжной системой вентиляции и кондиционирования, также стационарными кондиционерами. Телефон, интернет (оптоволоконный кабель), подключены все коммуникации, Круглосуточная охрана, видеонаблюдение внутри и по периметру. На территории есть большой охраняемый паркинг, бомбоубежище с отопление и интернетом. Своя котельная. Офисный центр выгодно расположен в оживленном районе Киева, а именно 5 минут от метро «Почайна» (Петровка), развитая инфраструктура. Арендная ставка – 500,00 грнu/кв.м., (в т.ч. НДС и эксплуатационные расходы). Коммунальные платежи – электричество, вода, отопление, согласно занимаемой площади. Пропозиція без комісії для орендаря.
Создано : 17.10.2025
500 грн
12 $

Віктор
посредник
Создано : 17.10.2025
Просмотренные
Аренда просторного офиса на Петровке в Бизнес Центре класса " В + " по адресу проспект Степана Бендеры. Несколько отдельных входов. Этаж 2/4 этажного нежилого здания. Общая площадь офиса 905 м2. Фотографии и пл...
03.10.2025
Этаж:
2/4
Общая
900 м2
452 000 грн
Аренда просторного офиса на Петровке в Бизнес Центре класса " В + " по адресу проспект Степана Бендеры. Несколько отдельных входов. Этаж 1/4 этажного нежилого здания. Общая площадь офиса 905 м2. Фотографии и пл...
03.10.2025
Этаж:
1/4
Общая
900 м2
543 000 грн
Популярное на сайте


Одесса


Киев