Сдам долгосрочно офисное помещение
Киев, р-н Подольский, межигірська, 87
ID: 5241416
71 000 грн
Этаж
3/4
Тип стен
кирпич
Общая площадь
250 м2
Состояние
жилое
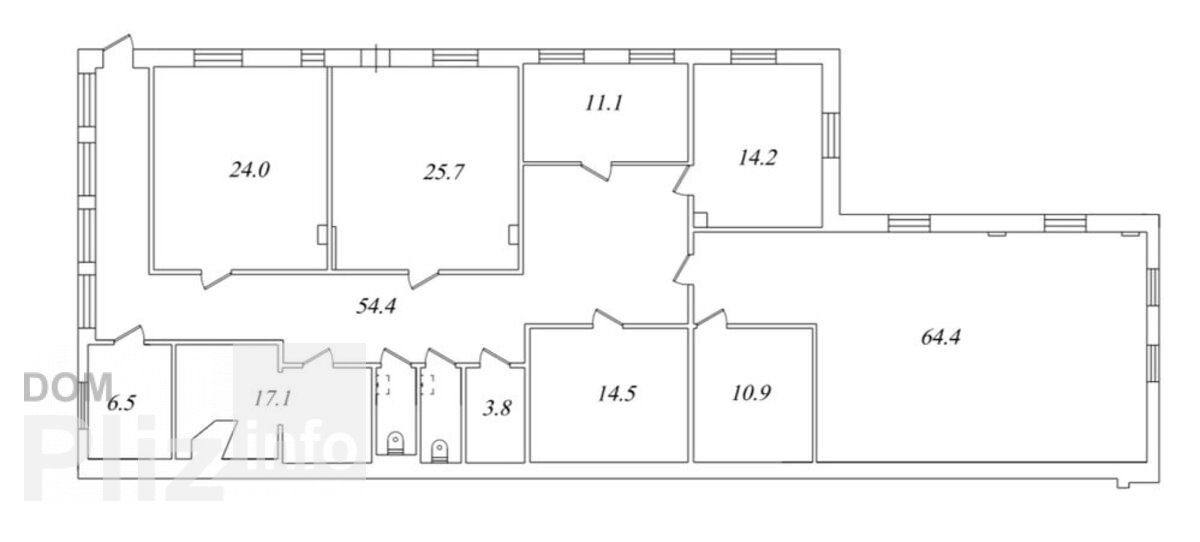
Оренда офісу площею 250 м2 в сучасному бізнес центрі в пішій доступності від станції метро Тараса Шевченка 3 хвилини. Працює генератор 250м2 - третій поверх, доступ 24/7 -паркування •можливість реєстрації юр.адреси •нежитловий фонд -Орендна ставка – 284 грн/м2 -Сервісні послуги - 42 грн/м2 -Опалення - 34 грн/м2 Вода та електроенергія по лічильниках. На території цілодобовий пост фізичної охорони обладнано тривожною кнопкою виклику поліції та відеоспостереження. Пропозиція без комісії для орендарів.
Создано : 17.10.2025
71 000 грн
1 705 $

Віктор
посредник
Создано : 17.10.2025
Просмотренные
Оренда офісу кабінетного типу площею 250 м2, кабінетної системи, 12 кабінетів. Поділ, станція метро Тараса Шевченка. Вартість оренди - 220 грн/м2 + ПДВ + комунальні. Пропозиція без комісії для орендаря....
17.10.2025
Этаж:
2/3
Общая
250 м2
220 грн
Аренда просторного офиса в центре Киева по адресу улица Григория Сковороды. Этаж 3/4 этажного нежилого здания. Общая площадь офиса 235 м2. Фотографии и планировка соответствуют реальсности. Планировка - рабочие...
17.10.2025
Этаж:
3/4
Общая
240 м2
200 000 грн
Аренда просторного офиса в центре Киева на Подоле в Бизнес Центре класса " В " по адресу улица Верхний Вал. Этаж 2/4 этажного нежилого здания. Общая площадь офиса 252 м2. Фотографии и планировка соответствуют р...
17.10.2025
Этаж:
2/4
Общая
250 м2
124 907 грн
Аренда просторного офиса в центре Киева в Бизнес Центре класса " В + " по адресу улица Ильинская. Этаж 5/6 этажного нежилого здания. Полезная площадь офиса 218.05 м2. Арендуемая площадь 250.76 м2 ( 15 % коэффиц...
03.10.2025
Этаж:
5/6
Общая
250 м2
208 179 грн
Популярное на сайте


Одесса


Киев