Сдам долгосрочно офисное помещение
Киев, р-н Подольский, межигірська
ID: 5241427
89 744 грн
Этаж
4/5
Тип стен
кирпич
Общая площадь
316 м2
Состояние
жилое
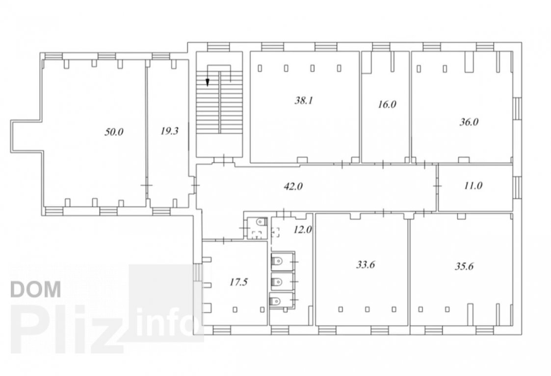
316м2 приміщення в оренду. Поділ. Є генератор, метро Тараса Шевченка, три хвилини пішки, паркування, можливість реєстрації юр.адреси, нежитловий фонд. Орендна ставка – 284 грн./м2. Сервісні послуги - 42 грн./м2 -Опалення - 34 грн./м2 Вода та електроенергія по лічильниках. На території цілодобовий пост фізичної охорони обладнано тривожною кнопкою виклику поліції та відеоспостереження. Пропозиція без комісії для орендаря.
Создано : 17.10.2025
89 744 грн
2 155 $

Віктор
посредник
Создано : 17.10.2025
Просмотренные
Оренда о фісного блоку площею 312 кв.м, вул. Воздвиженська Вільне комерційне приміщення 6 поверх, з ремонтом, без меблів. 1 орендар на поверсі. Планування - 2 зони опенспейс + 2 кабінети, переговорні + кухня +...
17.10.2025
Этаж:
6/7
Общая
312 м2
218 400 грн
Оренда офісу 312 кв.м, на Подолі вул. Воздвиженська. 6 поверх, з ремонтом, без меблів. 1 орендар на поверсі. Планування - 2 зони опенспейс + 3 кабінети, 2 переговорні + кухня + санвузол + серверна. Приточно-вит...
17.10.2025
Этаж:
6/7
Общая
312 м2
202 800 грн
Аренда современного офиса на Подоле ( Воздвиженка ) в Бизнес Центр класса " В + " по адресу улица Воздвиженская. Этаж 6/7 этажного нежилого здания. Общая площадь офиса 312 м2. Фотографии и планировка соответств...
03.10.2025
Этаж:
6/7
Общая
320 м2
218 000 грн
БЕЗ КОМИССИИ!!! Аренда офисного помещения в бизнес центре класса "В" по ул. Межигорская, площадью 317 м2. Офис расположен на 5-этаже и имеет смешанную планировку (Open Space, 8 кабинетов, помещение под мини кух...
11.02.2022
Этаж:
5/5
Общая
317 м2
135 492 грн
Популярное на сайте


Одесса


Киев