Сдам долгосрочно офисное помещение
Киев, р-н Подольский, Ільїнська, 8
ID: 5241432
625 грн
Этаж
5/6
Тип стен
кирпич
Общая площадь
375 м2
Состояние
жилое
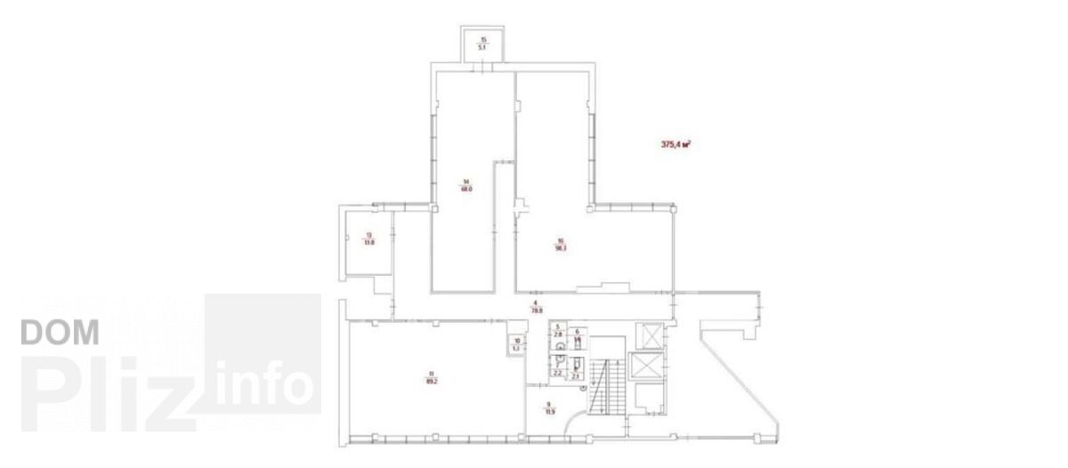
Оренда офісу 375 м2 в сучасному БЦ на Подолі, в пішій доступності станції метро Контрактова площа, Поштова площа. 5-й поверх, 2 ввода електроенергії, велопарковка, цілодобова охорона і відеоспостереження. Планування - опен-спейс , кабінети, кухня, санвузол, серверна. Вартість оренди - 15 дол/м2 з ПДВ + експлуатаційні послуги - 4,8 дол/м2 з ПДВ. Пропозиція без комісійних для орендаря.
Создано : 17.10.2025
625 грн
15 $

Віктор
посредник
Создано : 17.10.2025
Просмотренные
382м2 - третій поверх Поділ, метро Тараса Шевченка, три хвилини пішки паркування •можливість реєстрації юр.адреси •нежитловий фонд -Орендна ставка – 284 грн/м2 -Сервісні послуги - 42 грн/м2 -Опалення - 34 грн/м...
17.10.2025
Этаж:
3/3
Общая
382 м2
108 488 грн
Аренда просторного офиса на Воздвиженке в Бизнес Центре класса " В " по адресу улица Воздвиженская. Этаж 2/7 этажного нежилого здания. Общая площадь офиса 380 м2. Фотографии и планировка соответствует реальност...
03.10.2025
Этаж:
5/7
Общая
380 м2
270 633 грн
Аренда просторного офиса в центре Киева в Бизнес Центре класса " В " по адресу улица Верхний Вал. Этаж 5/6 этажного нежилого здания. Общая площадь офиса 381 м2. Фотографии и планировка соответствуют реальности....
03.10.2025
Этаж:
5/6
Общая
380 м2
301 860 грн
БЕЗ КОМИССИИ!!! Аренда офиса 365 м2 (нежилой фонд) по ул. Петра Сагайдачного (Подольский район). Офис расположен на 3-этаже и имеет открытую планировку. Состояние - после строителей (предоставляются ремонтные к...
11.02.2022
Этаж:
3/9
Общая
365 м2
379 718 грн
Популярное на сайте


Одесса


Киев