Продам 1-комнатную квартиру
Киев, р-н Печерский, Старонаводницька вул., 16б
ID: 5245840
4 624 147 грн
(100 525 за м2)
Кол-во комнат
1
Этаж
8/10
Тип стен
кирпич
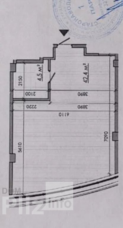
Общая площадь
46 м2
Кухня площадь
40 м2
Состояние
жилое
Тип недвижимости
Вторичный рынок
Продам 1кімнатну квартиру в жк Intergal city Старонаводницька 16б. Вежа Б, 8 поверх. Ведеться активне будівництво, введення в експлуатацію 2 квартал 2026р. Intergal City- один із найкращих та найсучасніших жк в центрі Києва. Житловий комплекс буде обладнаний центральною системою кондиціонування та автономною газовою генерацією електроенергії. Чудова інфраструктура центру Спеціадлст Світлана
Создано : 13.11.2025
4 624 147 грн
(100 525 за м2)
110 000 $
(2 391 за м2)
АН КУБ
посредник
Создано : 13.11.2025
Просмотренные
Продаётся однокомнатная квартира. Печерский район, улица Маккейна Джона, 7, метро Зверинецкая (Дружбы народов), ЖК Central Park (Централ Парк) (сдан)Продам 1к квартиру в ЖК Централ парк.Будинок підключений до б...
20.10.2025
Комнат
1
Этаж:
10/25
Общая
52 м2
Жилая
14 м2
Кухня
19 м2
7 104 371 грн
Продажа однокомнатной квартиры в ЖК Французский квартал 2 по ул. Предславинская, Печерск. Площадь 53,9 м2, расположена на 6 этаже 8 этажного дома. Квартира с дизайнерским качественным ремонтом. Вся необходимая ...
11.02.2022
Комнат
1
Этаж:
6/8
Общая
53.9 м2
Кухня
19 м2
9 584 596 грн
Продажа однокомнатной квартиры в ЖК Французский Квартал-2 по ул. Предславинская,53, Печерск. Площадь 56,1 м2, 19/21 этажного дома. Состояние после строителей. Дом сдан и заселен. На территории есть все необходи...
11.02.2022
Комнат
1
Этаж:
19/21
Общая
56 м2
Жилая
18.5 м2
Кухня
22.5 м2
6 936 221 грн
Продажа однокомнатной квартиры в ЖК Французский квартал 2 по улице Предславинская, 53, Печерск. Расположена на 6 этаже 20 этажного дома, общей площадью 40,6 м2.В квартире сделан качественный дизайнерский ремонт...
11.02.2022
Комнат
1
Этаж:
6/20
Общая
40 м2
Кухня
15 м2
6 515 844 грн
Популярное на сайте

ОдессаОдесса

КиевКиев












