Продам офисное помещение
Киев, р-н Голосеевский, Большая Васильковская ул., 62/64
ID: 5246152
110 962 500 грн
(184 938 за м2)
Кол-во помещений
12
Этаж
5/8
Тип стен
кирпич
Общая площадь
600 м2
Состояние
жилое
Тип недвижимости
Офисное помещение
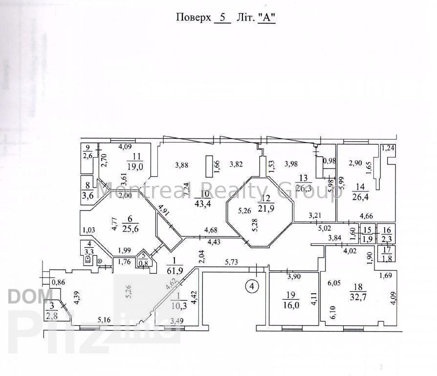
Продажа просторного офиса в центре Киева в Бизнес Центре класса " В " по адресу улица Большая Васильковская. Этаж 5-6/8 этажного нежилого здания. Общая площадь офиса 608.4 м2. Фотографии и планировка соответствуют реальности. Планировка - рабочие зоны + кабинеты/переговорные, кухня, санузлы, кладовки, серверная. Состояния - хороший офисный ремонт. Офис оснащен всем необходимым для комфортной и безопасной работы. Отличная транспортная развязка, в пешей доступности станция метро Олимпийская 1 минута пешком.Вакантность в этом БЦ - 305 м2, 302 м2, 303 м2, 605 м2, 910 м2.Оснащения Бизнес Центра:1. Система кондиционирования.2. Система приточно-вытяжной вентиляции.3. Оптоволоконные линии связи.4. Система контроля доступа.5. Противопожарная система безопасности.6. Круглосуточная физическая охрана.7. Круглосуточное видеонаблюдение.8. Лифты - 2 шт., фирмы OTIS.9. Подземный паркинг.Цена продажи - 2 200 000 €.Номер оголошення на сайті компанії: SC-178-273-DP.
Обновлено: 03.01.2026
110 962 500 грн
(184 938 за м2)
2 557 170 $
(4 262 за м2)
Радион Попов
посредник
Обновлено: 03.01.2026
Просмотренные
Продажа просторного офиса в центре Киева по адресу улица Жилянская. Отдельный вход с улицы Семьи Праховых ( Гайдара ), несколько входов в помещение. Этаж 2/2 этажного нежилого здания. Общая площадь офиса 1 363 ...
03.01.2026
Этаж:
2/2
Общая
1400 м2
53 242 843 грн
Продажа просторного офиса в центре Киева по адресу улица Саксаганского. Этаж 4/6 этажного здания. Общая площадь офиса 218.8 м2. Фотографии и планировка соответствуют реальности. Планировка - рабочие зоны + каби...
03.01.2026
Этаж:
4/6
Общая
220 м2
27 337 401 грн
Продажа стильного офиса в центре Киева по адресу улица Саксаганского. Этаж 1/6 этажного здания. Общая площадь офиса 120 м2. Фоторгафии и планировка соответствуют реальности. Планировка - open space + рабочие зо...
03.01.2026
Этаж:
1/6
Общая
120 м2
19 960 642 грн
Продажа отдельно стоящее офисное здания в центре Киева по адресу улица Саксаганского. Этажность - 4 этажа + мансардный и цоколь. Общая площадь здания 1 660 м2. Фотографии и планировки соответствуют реальности. ...
03.01.2026
Этаж:
1/4
Общая
1700 м2
216 963 500 грн
Популярное на сайте

ОдессаОдесса

КиевКиев




















