Сдам долгосрочно офисное помещение
Киев, р-н Голосеевский, Ахтырский пер., 7
ID: 5246206
720 849 грн
Кол-во помещений
5
Этаж
1/4
Тип стен
кирпич
Общая площадь
1100 м2
Состояние
жилое
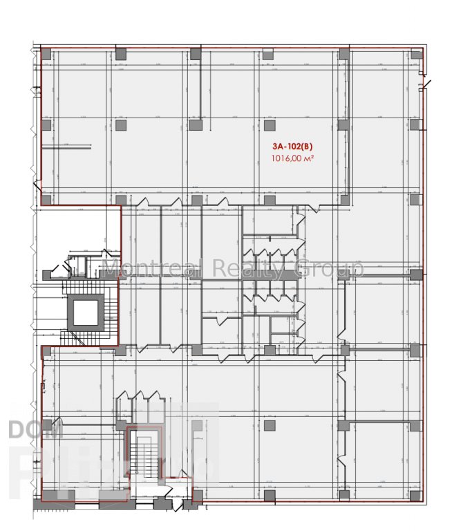
Аренда стильного офиса в Бизнес Центре класса " В + " по адресу Ахтырский переулок. Этаж 1/4 этажного нежилого здания. Полезная площадь офиса 1 016 м2. Арендуемая площадь 1 137.92 м2 ( 12 % коэффициент BOMA ). Фотографии и планировка соответствуют реальности. Планировка - open space + рабочие зоны + кабинеты/переговорные, место для кухни, санузлы, кладовки, серверная. Состояние - хороший офисный ремонт. Офис оснащен всем необходимым для комфортной и безопасной работы. Отличная транспортная развязка, в пешей доступности остановка общественного транспорта и станция метро Васильковская 10 минут пешком.Вакантность в этом БЦ - 76 м2, 175 м2, 277 м2, 334 м2, 431 м2, 432 м2, 436 м2, 580 м2, 763 м2, 912 м2, 2 044 м2, 1 455 м2.Оснащения Бизнес Центра:1. Система приточно-вытяжной вентиляции.2. Система кондиционирования.3. Автономное отопление.4. Оптоволоконные линии связи.5. Система контроля доступа.6. Противопожарная система безопасности.7. Круглосуточная физическая охрана.8. Видеонаблюдение (периметр, холл, лифты, места общего пользования, парковка).9. Лифты - 6 шт., фирмы OTIS.10. Большая наземная парковка.11. Генератор.Коммерческие условия:Арендная ставка - 15 $/м2 с эксплуатации + НДС + коммунальные услуги.Номер оголошення на сайті компанії: RC-180-199-DP.
Создано : 17.11.2025
720 849 грн
17 100 $
Радион Попов
посредник
Создано : 17.11.2025
Просмотренные
Аренда представительского офиса в центре Киева в Бизнес Центре класса " В + " по адресу улица Антоновича. Этаж 11/17 этажного нежилого здания. Общая площадь офиса 240 м2. Фотографии и планировка соответствуют р...
23.11.2025
Этаж:
11/17
Общая
240 м2
274 007 грн
Аренда просторного офиса в Бизнес Центре класса " В + " по адресу Ахтырский переулок. Этаж 2/4 этажного нежилого здания. Полезная площадь офиса 1 299.51 м2. Арендуемая площадь 1 455.451 м2 ( 12 % коэффициент BO...
17.11.2025
Этаж:
2/4
Общая
1500 м2
813 590 грн
Аренда просторного офиса в Бизнес Центре класса " В + " по адресу Ахтырский переулок. Этаж 1/4 этажного нежилого здания. Полезная площадь офиса 1 825.89 м2. Арендуемая площадь 2044.997 м2 ( 12 % коэффициент BOM...
17.11.2025
Этаж:
1/4
Общая
2000 м2
1 138 182 грн
Аренда просторного офиса в Бизнес Центре класса " В + " по адресу Ахтырский переулок. Этаж 2/4 этажного нежилого здания. Полезная площадь офиса 518.55 м2. Арендуемая площадь 580.78 м2 ( 12 % коэффициент BOMA )....
17.11.2025
Этаж:
2/4
Общая
580 м2
324 593 грн
Популярное на сайте

ОдессаОдесса

КиевКиев


















