Сдам долгосрочно офисное помещение
Киев, р-н Соломенский, Борщаговская ул., 192
ID: 5246223
157 500 грн
Кол-во помещений
3
Этаж
4/8
Тип стен
кирпич
Общая площадь
350 м2
Состояние
жилое
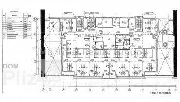
Аренда просторного офиса в Бизнес Центре класса " В + " по адресу улица Борщаговская. Этаж 4/8 этажного нежилого здания. Общая площадь офиса 350 м2. Фотографии и планировки соответствуют реальности. Планировка - open space + кабинеты/переговорные, кухня, санузлы, кладовки, серверная. Очень светлое, просторное помещение, по всему периметру - окна. Состояния - ремонт в стиле LOFT. Продуманная качественная разводка электрики, стильные ледовские светильники. Офис оснащен всем необходимым для комфортной и безопасной работы. Отличная транспортная развязка, в пешей доступности остановка общественного транспорта и станция метро Шулявская 15 минут пешком.Оснащения Бизнес Центра:1. Система приточно-вытяжной вентиляции.2. Система кондиционирования.3. Оптоволоконные линии связи.4. Система контроля доступа.5. Противопожарная система безопасности.6. Круглосуточная физическая охрана.7. Видеонаблюдение.8. Лифты - 2 шт., фирмы OTIS.9. Подземный паркинг.10. Комната отдыха с настольными играми и тренажёрами (на отдельном этаже).11. Генератор.Коммерческие условия:Арендная ставка - 450 грн./м2 с эксплуатации и НДС + коммунальные услуги.Номер оголошення на сайті компанії: RC-163-869-DP.
Обновлено: 03.01.2026
157 500 грн
3 664 $
Радион Попов
посредник
Обновлено: 03.01.2026
Просмотренные
Аренда современного офиса в новом Бизнес Центре класса " В + " по адресу Бульвар Валцава Гавела. Этаж 3-4-5/7 этажного нежилого здания. Общая площадь офиса 3 531.2 м2. Фотографии и планировка соответстуют реаль...
03.01.2026
Этаж:
3/7
Общая
3500 м2
1 891 578 грн
Аренда современного офиса в новом Бизнес Центре класса " В + " по адресу Бульвар Валцава Гавела. Этаж 4-5/7 этажного нежилого здания. Общая площадь офиса 2 125.2 м2. Фотографии и планировка соответстуют реально...
03.01.2026
Этаж:
4/7
Общая
2200 м2
1 143 545 грн
Аренда современного офиса в новом Бизнес Центре класса " В + " по адресу Бульвар Валцава Гавела. Этаж 4/7 этажного нежилого здания. Общая площадь офиса 1007.2 м2. Фотографии и планировка соответстуют реальности...
03.01.2026
Этаж:
4/7
Общая
1000 м2
541 679 грн
Аренда современного офиса в новом Бизнес Центре класса " В + " по адресу Бульвар Валцава Гавела. Этаж 5/7 этажного нежилого здания. Общая площадь офиса 1 118 м2. Фотографии и планировка соответстуют реальности....
03.01.2026
Этаж:
5/7
Общая
1100 м2
576 071 грн
Популярное на сайте

ОдессаОдесса

КиевКиев



















