Сдам долгосрочно офисное помещение
Киев, р-н Шевченковский, Пимоненко Николая ул., 13
ID: 5246276
260 478 грн
Кол-во помещений
3
Этаж
6/6
Тип стен
кирпич
Общая площадь
400 м2
Состояние
жилое
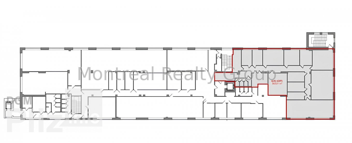
Аренда просторного офиса в Бизнес центре класса " В + " по адресу улица Николая Пимоненко. Этаж 6/6 этажного нежилого здания. Полезная площадь офиса 363.01 м2. Арендуемая площадь 406.57 м2 ( 10 % коэффициент BOMA ). Фотографии и планировка соответствуют реальности. Планировка - рабочие зоны + кабинеты/переговорные, кухня, санузлы, кладовки, серверная. Состояния - хороший офисный ремонт. Офис оснащен всем необходимым для комфортной и безопасной работы. Отличная транспортная развязка, в пешей доступности остановка общественого транспорта и станция метро Лукьяновская 10 минут пешком.Вакантность в этом БЦ - 29 м2, 60 м2, 84 м2, 92 м2, 100 м2, 122 м2, 123 м2, 228 м2, 260 м2, 300 м2, 293 м2, 330 м2, 333 м2, 348 м2, 355 м3, 366 м2, 377 м2, 406 м2, 446 м2, 491 м2, 693 м2, 750 м2, 865 м2, 1 103 м2.Оснащения Бизнес Центра:1. Система приточно-вытяжной вентиляции.2. Система кондиционирования.3. Автономная система отопления с терморегуляторами.4. Оптоволоконные линии связи.5. Система контроля доступа.6. Противопожарная система7. Круглосуточная физическая охрана.8. Видеонаблюдение (периметр, холл, лифты, места общего пользования, парковка).9. Лифты - 10 шт., фирмы OTIS.10. Большая наземная парковка.11. 2 независимых источника энергии.12. Генератор.Коммерческие условия:Арендная ставка - 14.72 $/м2 с эксплуатации + НДС + коммунальные услуги.Номер оголошення на сайті компанії: RC-128-818-DP.
Обновлено: 03.01.2026
260 478 грн
6 000 $
Радион Попов
посредник
Обновлено: 03.01.2026
Просмотренные
Оренда офісу в пішій доступності від станції метро Берестейська, площа 393 м2. Безпечне місце. Два офіса один над одним 196 та 197 кв.м. корисної площі. Після косметичного ремонту. Змішана система кабінети + за...
14.01.2026
Этаж:
3/5
Общая
393 м2
150 000 грн
Централізована система кондиціонування (чилера і фанк-ойлі), припливно-витяжна вентиляція.Опалення:Централізована система кондиціонування (чілер и фанк-ойлі), припливно-витяжна вентиляція.ОхоронаСистема пожежно...
Шулявская
Шулявская
03.12.2025
Этаж:
1/6
Общая
398 м2
Жилая
298 м2
207 340 грн
Аренда просторного офиса на Нивках в Бизнес Центре класса " В + " по адресу Берестейский проспект ( проспект Победы ). Этаж 13/13 этажного нежилого здания. Общая площадь офиса 400 м2. Фотографии и планировка со...
03.01.2026
Этаж:
13/13
Общая
400 м2
173 652 грн
Аренда просторного офиса в центре Киева в Бизнес Центра класса " В " по адресу улица Владимирская. Этаж 4/7 этажного нежилого здания. Общая площадь офиса 400 м2. Фотографии и планировка соответствуют реальности...
03.01.2026
Этаж:
4/7
Общая
400 м2
366 840 грн
Популярное на сайте

ОдессаОдесса

КиевКиев















