Сдам долгосрочно офисное помещение
Киев, р-н Голосеевский, Ахтырский пер., 7
ID: 5246294
227 312 грн
Кол-во помещений
4
Этаж
2/4
Тип стен
кирпич
Общая площадь
360 м2
Состояние
жилое
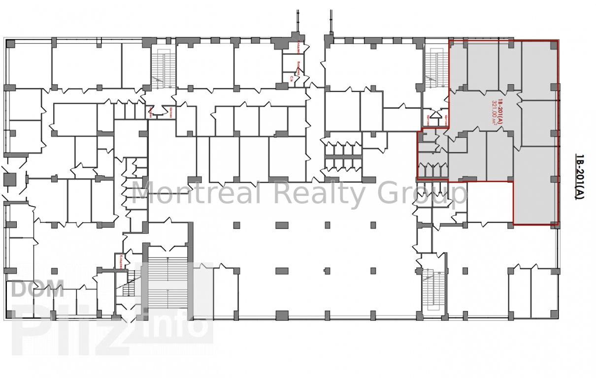
Аренда просторного офиса в Бизнес Центре класса " В + " по адресу Ахтырский переулок. Этаж 2/4 этажного нежилого здания. Полезная площадь офиса 321 м2. Арендуемая площадь 359.52 м2 ( 12 % коэффициент BOMA ). Фотографии и планировка соответствуют реальности . Планировка - рабочие зоны + кабинеты/переговорные, место для кухни, санузлы, кладовки, серверная. Состояние - хороший офисный ремонт. Офис оснащен всем необходимым для комфортной и безопасной работы. Отличная транспортная развязка, в пешей доступности остановка общественного транспорта и станция метро Васильковская 10 минут пешком.Вакантность в этом БЦ - 76 м2, 175 м2, 277 м2, 334 м2, 431 м2, 432 м2, 436 м2, 580 м2, 763 м2, 912 м2, 2 044 м2, 1 455 м2.Оснащения Бизнес Центра:1. Система приточно-вытяжной вентиляции.2. Система кондиционирования.3. Автономное отопление.4. Оптоволоконные линии связи.5. Система контроля доступа.6. Противопожарная система безопасности.7. Круглосуточная физическая охрана.8. Видеонаблюдение (периметр, холл, лифты, места общего пользования, парковка).9. Лифты - 6 шт., фирмы OTIS.10. Большая наземная парковка.11. Генератор.Коммерческие условия:Арендная ставка - 15 $/м2 с эксплуатации + НДС + коммунальные услуги.Номер оголошення на сайті компанії: RC-128-803-DP.
Создано : 17.11.2025
227 312 грн
5 400 $
Радион Попов
посредник
Создано : 17.11.2025
Просмотренные
Аренда просторного офиса в Бизнес Центре класса " В " по адресу улица Голосеевская. Этаж 1/8 этажного нежилого здания. Общая площадь офиса 372 м2. Фотографии и планировка соответствуют реальности. Планировка - ...
17.11.2025
Этаж:
1/8
Общая
370 м2
186 000 грн
Аренда просторного офиса в центре Киева в Бизнес Центре класса " В + " по адресу улица Большая Васильковская. Этаж 5/22 этажного здания. Нежилой Фонд. Общая площадь офиса 367 м2. Фотографии и планировка соответ...
17.11.2025
Этаж:
5/22
Общая
370 м2
252 569 грн
Аренда просторного офиса в Бизнес Центре класса " В + " по адресу улица Сумская. Этаж 3/9 этажного нежилого здания. Общая площадь офиса 369.57 м2. Фотографии и планировка соответствуют реальности. Планировка - ...
17.11.2025
Этаж:
3/9
Общая
370 м2
162 600 грн
Аренда офиса 370 м2 ( с учетом коэффициента общих площадей ). Офисное помещение расположено на 5-м этаже Бизнес центра. Планировка: Open Space, 4 кабинета, холл с зоной рецепции. Бизнес центр расположен в центр...
11.02.2022
Этаж:
5/5
Общая
370 м2
117 440 грн
Популярное на сайте

ОдессаОдесса

КиевКиев




















