Сдам долгосрочно офисное помещение
Киев, р-н Шевченковский, Дегтяревская ул., 27Т
ID: 5246342
281 587 грн
Кол-во помещений
11
Этаж
9/10
Тип стен
кирпич
Общая площадь
690 м2
Состояние
жилое
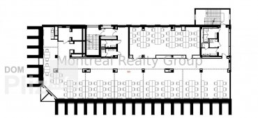
Аренда просторного офиса в Бизнес Центре класса " В " улица Дегтяревская. Этаж 9/10 этажного нежилого здания. Полезная площадь офиса 618.7 м2. Арендуемая площадь 686.75 м2 ( 11 % коэффициент BOMA ). Фотографии и планировка соответствуют реальности. Планировка - open space + рабочие зоны + кабинеты/переговорные, кухня, санузлы, кладовки, серверная. Состояние - хороший офисный ремонт. Офис оснащен всем необходимым для комфортной и безопасной работы. Отличная транспортная развязка, в пешей доступности остановка общественного транспорта и станции метро Лукьяновская и Шулявская 10 минут пешком.Вакантность в этом БЦ - 466 м2, 299 м2, 297 м2, 781 м2, 666 м2, 333 м2, 777 м2, 686 м2.Оснащения Бизнес Центра:1. Система кондиционирования с возможностью регулировки микроклимата.2. Система вентиляции чиллер-фенкойл3. Оптоволоконные линии связи.4. Система контроля доступа.5. Противопожарная система безопасности.6. Круглосуточная физическая охрана.7. Видеонаблюдение.8. Лифты - 4 шт., фирмы TYSSENKRUPP.9. Большая наземная парковка.10. 2 независимых источника электропитания.Коммерческие условия:Арендная ставка - 9.5 $/м2 с эксплуатации + НДС + коммунальные услуги.Номер оголошення на сайті компанії: RC-196-815-DP.
Обновлено: 03.01.2026
281 587 грн
6 550 $
Радион Попов
посредник
Обновлено: 03.01.2026
Просмотренные
Аренда современного офиса в центре Киева в Бизнес Центре класса " А " по адресу площадь Независимости. Этаж 9/9 этажного нежилого здания. Общая площадь этажа 700 м2. Фотографии и планировка соответствуют реальн...
03.01.2026
Этаж:
9/9
Общая
700 м2
1 160 741 грн
Аренда современного офиса в центре Киева в Бизнес Центре класса " В " по адресу улица Владимирская. Этаж 2/4 этажного нежилого здания. Общая площадь офиса 680 м2. Фотографии и планировка соответствуют реальност...
03.01.2026
Этаж:
2/4
Общая
680 м2
429 904 грн
Аренда современного офиса в центре Киева в Бизнес Центре класса " А " по адресу площадь Независимости. Этаж 8/9 этажного нежилого здания. Общая площадь этажа 700 м2. Фотографии и планировка соответствуют реальн...
03.01.2026
Этаж:
8/9
Общая
700 м2
1 203 731 грн
Аренда современного офиса в центре Киева в Бизнес Центре класса " В " по адресу улица Большая Жиомирская. Этаж 7/12 этажного нежилого здания. Общая площадь офиса 682 м2. Фотографии и планировка соответствуют ре...
03.01.2026
Этаж:
7/12
Общая
700 м2
528 782 грн
Популярное на сайте

ОдессаОдесса

КиевКиев

















