Сдам долгосрочно офисное помещение
Киев, р-н Оболонский, Бандеры Степана пр-т, 28А
ID: 5246476
417 334 грн
Кол-во помещений
10
Этаж
3/8
Тип стен
кирпич
Общая площадь
520 м2
Состояние
жилое
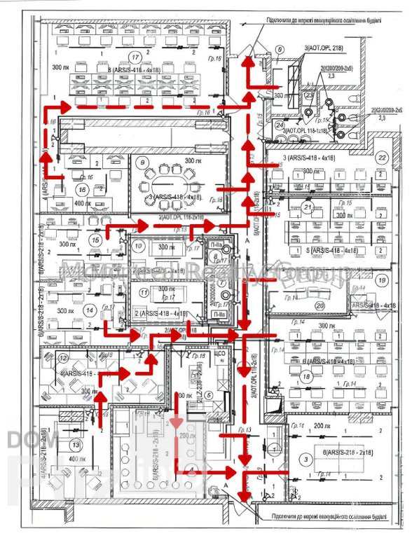
Аренда просторного офиса в новом Бизнес Центре класса " В + " по адресу проспект Степана Бандеры. Этаж 3/8 этажного нежилого здания. Полезная площадь офиса 472.26 м2. Арендуемая площадь 519.49 м2 ( 10 % коэффициент BOMA ). Фотографии и планировка соответствуют реальности. Планировка - open space + рабочие зоны - кабинеты/переговорные, кухня, санузлы, кладовки, серверная. Состояния - хороший офисный ремонт. Офис оснащен всем необходимым для комфортной и безопасной работы. Отличная транспортная развязка, в пешей доступности остановка общественного транспорта и станция метро Почайна 15 минут пешком.Вакантность в этом БЦ - 221 м2, 867 м2, 1 514 м2, 519 м2, 674 м2 ( 1 193 м2 ), 307 м2, 208 м2, 103 м2, 292 м2.Оснащения Бизнес Центра:1. Система приточно-вытяжной вентиляции.2. Локальная система кондиционирования.3. Автономное отопление.4. Оптоволоконные линии связи.5. Система контроля доступа.6. Противопожарная система безопасности.7. Круглосуточная физическая охрана.8. Видеонаблюдение.9. Лифты - 8 шт., фирмы KONE.10. Подземный паркинг и наземная парковка.11. Генератор.Коммерческие условия:Арендная ставка - 19 $/м2 с эксплуатации + НДС + коммунальные услуги.Номер оголошення на сайті компанії: RC-178-615-DP.
Создано : 17.11.2025
417 334 грн
9 900 $
Радион Попов
посредник
Создано : 17.11.2025
Просмотренные
Офісне приміщення 17 кв. м. видове у сучасному офісно-складському комплексі Пропонуємо до Вашої уваги комфортний для бізнесу офіс у сучасному офісно-складському комплексі за адресою: Велика Кільцева 4а/АШАНЗдаю...
20.11.2025
Этаж:
4/5
Общая
17 м2
Жилая
17 м2
660 грн
Офісні приміщення два кабінета по 17 кв. м у сучасному офісно-складському комплексі Пропонуємо до Вашої уваги комфортний для бізнесу офіс у сучасному офісно-складському комплексі за адресою: Велика Кільцева 4а/...
17.11.2025
Этаж:
4/5
Общая
34 м2
Жилая
34 м2
660 грн
Аренда престижного офиса класса " А " на Оболоне в ЖК премиум класса по адресу Оболонский проспект. Этаж 2/26 этажного здания. Общая площадь офиса 120 м2. Фотографии и планировка соответствуют реальности. Плани...
17.11.2025
Этаж:
2/26
Общая
120 м2
160 189 грн
Аренда современного офиса на Петровке в новом Бизнес Центре класса " В + " по адресу проспект Степана Бандеры. Этаж 7/10 этажного нежилого здания. Общая площадь офиса 407 м2. Фотографии и планировка соответству...
17.11.2025
Этаж:
7/10
Общая
400 м2
146 600 грн
Популярное на сайте

ОдессаОдесса

КиевКиев
















