Сдам долгосрочно офисное помещение
Киев, р-н Голосеевский, Гайдара ул., 58/10
ID: 5246486
303 749 грн
Кол-во помещений
8
Этаж
1/7
Тип стен
кирпич
Общая площадь
320 м2
Состояние
жилое
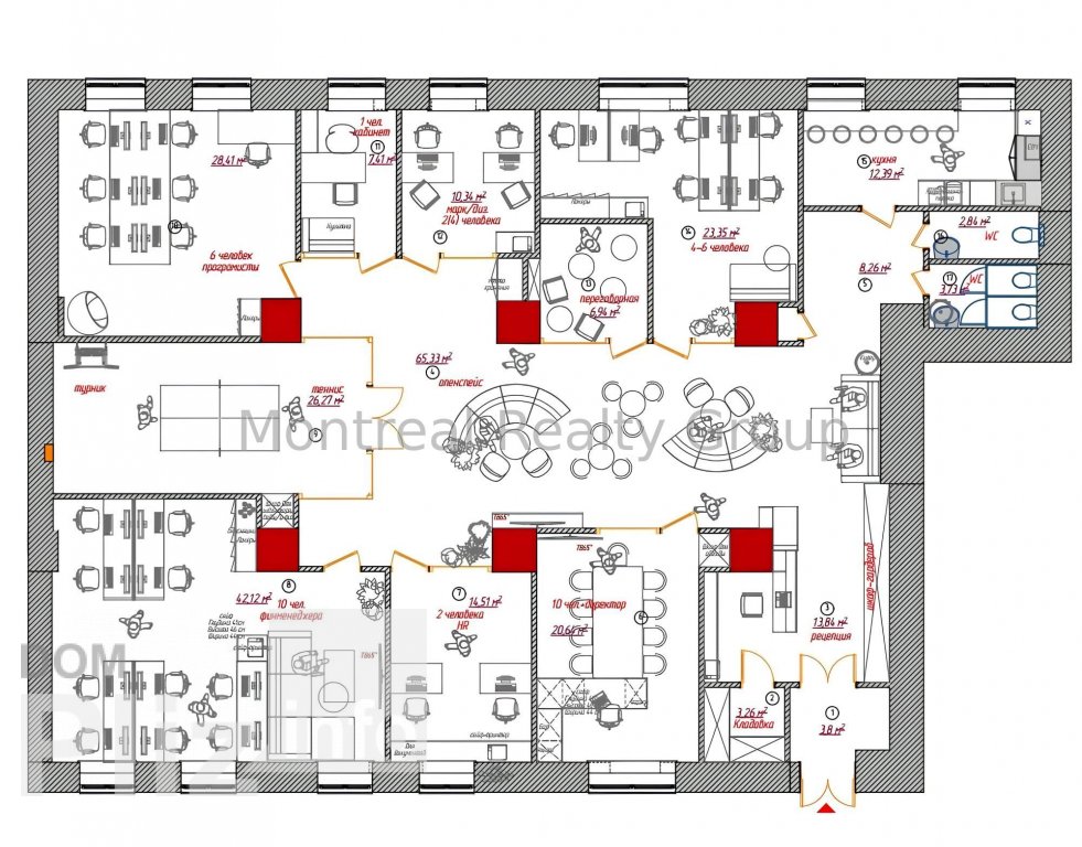
Аренда стильного офиса в центре Киева в Бизнес Центре класса " В + " по адресу улица Семьи Праховых ( Гайдара ). Этаж 1/7 этажного нежилого здания. Полезная площадь офиса 281.4 м2. Арендуемая площадь 315.17 м2. ( 12 % коэффициент BOMA ). Фотографии и планировка соответствуют реальности. Планировка - рабочие зоны + кабинеты/переговорные, кухня, санузлы, кладовки, серверная. Состояния - стильный ремонт. Офис оснащен всем необходимым для комфортной и безопасной работы. Отличная транспортная развязка, в пешей доступности остановка общественного транспорта и станции метро Олимпийская и Университет 10 минут пешком.Вакантность в этом БЦ - 409 м2, 425 м2, 728 м2, 167 м2, 362 м2, 577 м2, 258 м2, 649 м2, 961 м2, 1 821 м2, 1 488 м2.Оснащения Бизнес Центра:1. Система приточно-вытяжной вентиляции.2. Система кондиционирования.3. Оптоволоконные линии связи.4. Система контроля доступа.5. Противопожарная система безопасности.6. Круглосуточная физическая охрана.7. Видеонаблюдение (периметр, холл, лифты, места общего пользования, парковка).8. Лифты - 3 шт., фирмы OTIS.9. Большая наземная парковка.10. Генератор.Коммерческие условия:Арендная ставка - 22 $/м2 с эксплуатации + НДС + коммунальные услуги.Номер оголошення на сайті компанії: RC-140-522-DP.
Обновлено: 03.01.2026
303 749 грн
7 000 $
Радион Попов
посредник
Обновлено: 03.01.2026
Просмотренные
Оренда офісу в БЦ Palladium City. Оренда сучасного офісу 321 м2. Планування для компанії на 40–50 робочих місць. Приміщення займає весь поверх, здається меблями на 40 робочих місць Пряма вхідна група з ліфта —...
14.01.2026
Этаж:
13/24
Общая
321 м2
222 171 грн
Оренда мебльованого офісу площею 315 м2. В престижному БЦ зі зручною локацією станції метро Вокзальна, Університет. Площа офісу 281,4 м2 з коефіцієнтом 12% - 315,17 м2. Офіс обладнаний сучасними меблями. Індиві...
14.01.2026
Этаж:
1/5
Общая
315 м2
386 195 грн
Аренда просторного офиса по адресу проспект Науки. Этаж 2/5 этажного нежилого здания. Общая площадь офиса 314 м2. Фотографии и планировка соответствуют реальности. Планировка - open space + рабочие зоны + кабин...
03.01.2026
Этаж:
2/5
Общая
320 м2
190 928 грн
Аренда современного офиса в новом Бизнес Центре класса " В + " по адресу улица Академика Кнышова ( Амурская ). Этаж 1/6 этажного нежилого здания. Полезная площадь офиса 287.70 м2. Арендуемая площадь 326.54 м2 (...
03.01.2026
Этаж:
1/6
Общая
330 м2
227 812 грн
Популярное на сайте

ОдессаОдесса

КиевКиев




















