Сдам долгосрочно офисное помещение
Киев, р-н Шевченковский, Пимоненко Николая ул., 13
ID: 5246510
146 799 грн
Кол-во помещений
8
Этаж
1/6
Тип стен
кирпич
Общая площадь
230 м2
Состояние
жилое
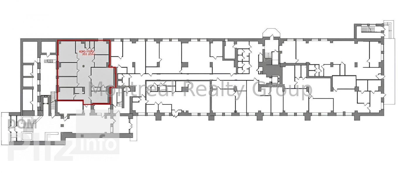
Аренда современного офиса в центре Киева в Бизнес центре класса " В + " по адресу улица Николая Пимоненко. Этаж 1/6 этажного нежилого здания. Полезная площадь офиса 203.85 м2. Арендуемая площадь 228.31 м2 ( 12 % коэффициент BOMA ). Фотографии и планировка соответствуют реальности. Планировка - рабочие зоны + кабинеты/переговорные, кухня, санузлы, кладовки, серверная. Состояния - хороший офисный ремонт. Офис оснащен всем необходимым для комфортной и безопасной работы. Отличная транспортная развязка, в пешей доступности остановка общественого транспорта и станция метро Лукьяновская 10 минут пешком.Вакантность в этом БЦ - 29 м2, 60 м2, 84 м2, 92 м2, 100 м2, 122 м2, 123 м2, 228 м2, 260 м2, 300 м2, 293 м2, 330 м2, 333 м2, 348 м2, 355 м3, 366 м2, 377 м2, 406 м2, 446 м2, 491 м2, 693 м2, 750 м2, 865 м2, 1 103 м2.Оснащения Бизнес Центра:1. Система приточно-вытяжной вентиляции.2. Система кондиционирования.3. Автономная система отопления с терморегуляторами.4. Оптоволоконные линии связи.5. Система контроля доступа.6. Противопожарная система7. Круглосуточная физическая охрана.8. Видеонаблюдение (периметр, холл, лифты, места общего пользования, парковка).9. Лифты - 10 шт., фирмы OTIS.10. Большая наземная парковка.11. 2 независимых источника энергии.12. Генератор.Коммерческие условия:Арендная ставка - 14.72 $/м2 с эксплуатации + НДС + коммунальные услуги.Номер оголошення на сайті компанії: RC-143-228-DP.
Обновлено: 03.01.2026
146 799 грн
3 400 $
Радион Попов
посредник
Обновлено: 03.01.2026
Просмотренные
Бізнес-центр Рубін (Rubin) розташований у діловому центрі Києва, Печерський район, вулиця Крутий узвіз, 7. У пішій доступності метро Палац спорту, Кловська та Льва Толстого. Поруч Бессарабська площа, бульвар Ле...
14.01.2026
Этаж:
7/8
Общая
220 м2
129 529 грн
Аренда просторного офиса в центре Киева в новом Бизнес Центре класса " А " по адресу улица Богдана Хмельницкого. Этаж 16/17 этажного нежилого здания. Полезная площадь офиса 184 м2. Арендуемая площадь 218.96 м2 ...
03.01.2026
Этаж:
16/17
Общая
220 м2
280 645 грн
Аренда просторного офиса в центре Киева в Бизнес Центре класса " А " по адресу улица Богдана Хмельницкого. Этаж 7/8 этажного нежилого здания. Полезная площадь офиса 195 м2. Арендуемая площадь 232.05 м2 ( 19 % к...
03.01.2026
Этаж:
7/8
Общая
240 м2
256 898 грн
Аренда просторного офиса в центре Киева в Бизнес Центре класса " В + " по адресу улица Бульварно-Кудрявская. Этаж 1/5 этажного нежилого здания. Общая площадь офиса 234.5 м2. Фотографии и планировка соответствую...
03.01.2026
Этаж:
1/4
Общая
240 м2
133 846 грн
Популярное на сайте

ОдессаОдесса

КиевКиев















