Сдам долгосрочно офисное помещение
Киев, р-н Подольский, Верхний Вал ул., 10
ID: 5246535
581 738 грн
Кол-во помещений
10
Этаж
2/5
Тип стен
кирпич
Общая площадь
800 м2
Состояние
жилое
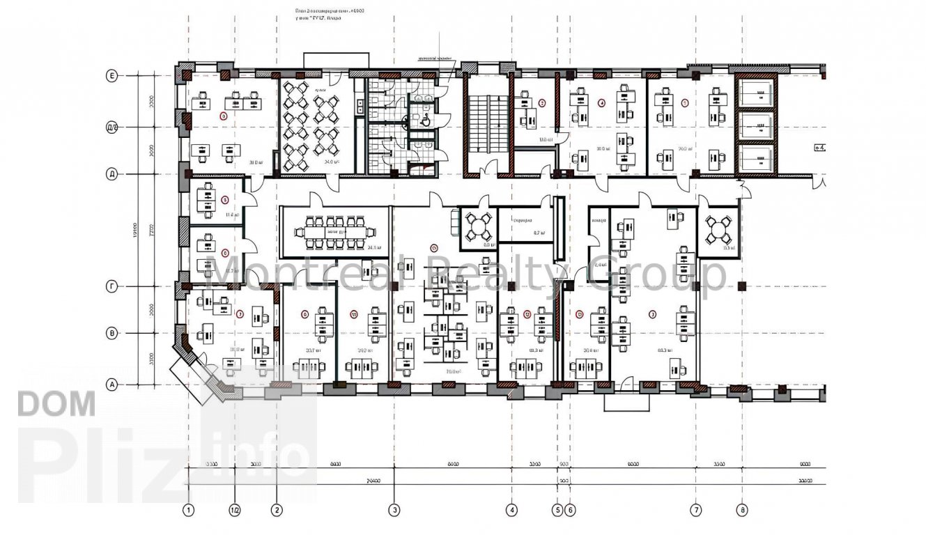
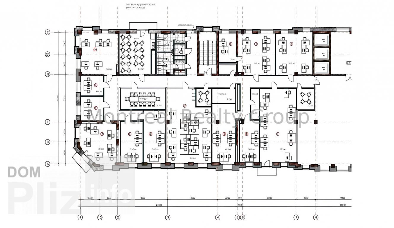
Аренда современного офиса в центре Киева на Подоле в Бизнес Центре класса " В + " по адресу улица Верхний Вал. Этаж 2/5 этажного нежилого здания. Полезная площадь офиса 706 м2. Арендуемая площадь офиса 811.9 м2 ( 10 % коэффициент BOMA ). Фотографии и планировка соответствуют реальности. Планировка - рабочие зоны + кабинеты/переговорные, место для кухни, санузлы, кладовки, серверная. Состояния - современный ремонт. Офис оснащен всем необходимым для комфортной и безопасной работы. Отличная транспортная развязка, в пешей доступности остановка обществееного транспорта и станция метро Контрактовая Площадь 5 минут пешком.Вакантность в этом БЦ - 1 240 м2.Оснащения Бизнес Центра:1. Система кондиционирование при помощи фанкойлов.2. Система приточно-вытяжной вентиляции.3. Полный климат-контроль HVAC.4. Автономное отопление.5. Оптоволоконные линии связи.6. Система контроля доступа в здании.7. Противопожарная система безопасности.8. Круглосуточная физическая охрана.9. Видеонаблюдение.10. Лифты - 5 шт. фирмы OTIS.11. Подземный паркинг и наземная парковка.12. Генератор.Коммерческие условия:Арендная ставка - 17 $/м2 с эксплуатации + НДС + коммунальные услуги.Номер оголошення на сайті компанії: RC-170-885-DP.
Создано : 17.11.2025
581 738 грн
13 800 $
Радион Попов
посредник
Создано : 17.11.2025
Просмотренные
Аренда современного офиса на Подоле ( Воздвиженка ) в Бизнес Центр класса " В + " по адресу улица Воздвиженская. Этаж 2/7 этажного нежилого здания. Общая площадь офиса 267.5 м2. Фотографии и планировка соответс...
17.11.2025
Этаж:
2/7
Общая
270 м2
161 000 грн
Аренда современного офиса в центре Киева на Подоле в Бизнес Центре класса " В + " по адресу улица Верхний Вал. Этаж 3/5 этажного нежилого здания. Полезная площадь офиса 1078.5 м2. Арендуемая площадь офиса 1 240...
17.11.2025
Этаж:
3/5
Общая
1300 м2
864 175 грн
Аренда современного офиса в центре Киева на Подоле в Бизнес Центре класса " В + " по адресу улица Боричев Ток. Этаж 6/7 этажного нежилого здания. Общая площадь офиса 640 м2. Целый этаж. Фотографии и планировка ...
17.11.2025
Этаж:
6/7
Общая
640 м2
569 091 грн
Аренда просторного офиса в центре Киева в Бизнес Центре класса " А " улица Игоревская. Этаж 3/6 этажного нежилого здания. Общая площадь офиса 1 320 м2. Фотографии и планировка соответствуют реальности. Планиров...
17.11.2025
Этаж:
3/5
Общая
1300 м2
948 485 грн
Популярное на сайте

ОдессаОдесса

КиевКиев



















