Сдам долгосрочно офисное помещение
Киев, р-н Подольский, Спасская ул., 5
ID: 5246634
307 552 грн
Кол-во помещений
8
Этаж
2/5
Тип стен
кирпич
Общая площадь
340 м2
Состояние
жилое
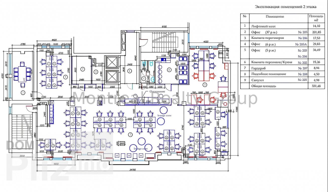
Аренда современного офиса в центре Киева на Подоле в Бизнес Центре класса " В + " по адресу улица Спасская. Этаж 2/5 этажного нежилого здания. Общая площадь офиса 337 м2. Фотографии и планировка соответсвуют реальности. Планировка - open space + рабочие зоны + кабинеты/переговорные, кладовки, место для кухни, санузлы, серверная. Состояния - современный ремонт. Офис оснащен всем необходимым для комфортной и безопасной работы. Отличная транспортная развязка, в пешей доступности станция метро Контрактовая Площадь 1 минута пешком.Оснащения Бизнес Центра:1. Система приточно-вытяжной вентиляции.2. Система кондиционирования.3. Автономное отопление.4. Оптоволоконные линии связи.5. Система контроля доступа.6. Противопожарная система безопасности.7. Круглосуточная физическая охрана.8. Видеонаблюдение.9. Лифты - 2 шт., фирмы OTIS.10. Подземный паркинг и наземная парковка.11. Генератор.Коммерческие условия:Арендная ставка - 21 $/м2 с эксплуатации + НДС + коммунальные услуги.Номер оголошення на сайті компанії: RC-210-402-DP.
Обновлено: 03.01.2026
307 552 грн
7 200 $
Радион Попов
посредник
Обновлено: 03.01.2026
Просмотренные
Аренда просторного офиса в центре Киева на Подоле в Бизнес Центре класса " В " по адресу улица Спасская. Этаж 3/5 этажного нежилого здания. Общая площадь офиса 340 м2. Фотографии и планировка соответсвуют реаль...
03.01.2026
Этаж:
3/5
Общая
340 м2
262 700 грн
Аренда просторного офиса в центре Киева на Подоле в Бизнес Центре класса " В " по адресу улица Спасская. Этаж 5/5 этажного нежилого здания. Общая площадь офиса 324 м2. Фотографии и планировка соответсвуют реаль...
03.01.2026
Этаж:
5/5
Общая
330 м2
264 836 грн
Аренда видового офиса в центре Киева в Бизнес Центре класса " А + " по адресу улица Петра Сагайдачного. Этаж 2/9 этажного нежилого здания. Полезная площадь офиса 283 м2. Арендуемая площадь 339.6 м2 ( 20 % коэфф...
03.01.2026
Этаж:
2/9
Общая
340 м2
326 774 грн
БЕЗ КОМИССИИ! Аренда офиса 327 м2 в Бизнес Центре в самом центре Подола возле метро Почтовая площадь. Планировка: 6 кабинетов, 2 переговорные комнаты, серверная, мини-кухня, 2 с/у. Техническое оснащение включае...
11.02.2022
Этаж:
4/5
Общая
330 м2
179 850 грн
Популярное на сайте

ОдессаОдесса

КиевКиев























