Сдам долгосрочно офисное помещение
Киев, р-н Голосеевский, Гайдара ул., 58/10
ID: 5246792
2 018 705 грн
Кол-во помещений
18
Этаж
6/7
Тип стен
кирпич
Общая площадь
1800 м2
Состояние
жилое
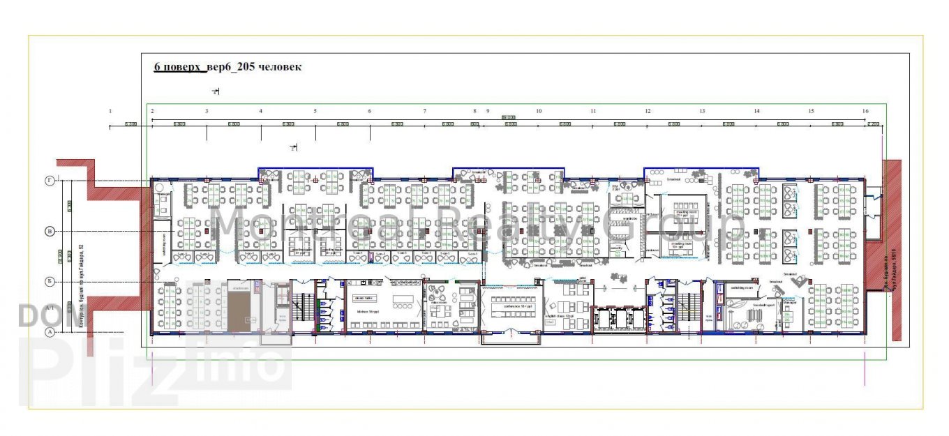
Аренда современного офиса в центре Киева в Бизнес Центре класса " В + " по адресу улица Семьи Праховых ( Гайдара ). Этаж 6/7 этажного нежилого здания. Полезная площадь офиса 1 626.5 м2. Арендуемая площадь 1 821.68 м2. ( 12 % коэффициент BOMA ). Фотографии и планировка соответствуют реальности. Планировка - open space + рабочие зоны + кабинеты/переговорные, кухни, санузлы, кладовки, серверная. Состояния - современный ремонт. Офис оснащен всем необходимым для комфортной и безопасной работы. Отличная транспортная развязка, в пешей доступности остановка общественного транспорта и станции метро Олимпийская и Университет 10 минут пешком.Вакантность в этом БЦ - 409 м2, 425 м2, 728 м2, 167 м2, 362 м2, 577 м2, 258 м2, 649 м2, 961 м2, 1 821 м2, 1 488 м2.Оснащения Бизнес Центра:1. Система приточно-вытяжной вентиляции.2. Система кондиционирования.3. Оптоволоконные линии связи.4. Система контроля доступа.5. Противопожарная система безопасности.6. Круглосуточная физическая охрана.7. Видеонаблюдение (периметр, холл, лифты, места общего пользования, парковка).8. Лифты - 3 шт., фирмы OTIS.9. Большая наземная парковка.10. Генератор.Коммерческие условия:Арендная ставка - 25.5 $/м2 с эксплуатации + НДС + коммунальные услуги.Номер оголошення на сайті компанії: RC-164-215-DP.
Обновлено: 03.01.2026
2 018 705 грн
46 500 $
Радион Попов
посредник
Обновлено: 03.01.2026
Просмотренные
Аренда современного офиса в центре Киева в Бизнес Центре класса " А + " по адресу улица Короленковская. Этаж 15/21 этажного нежилого здания. Полезная площадь офиса 1 514.2 м2. Арендуемая площадь 1 817 м2 ( 15 %...
03.01.2026
Этаж:
15/21
Общая
1800 м2
2 053 435 грн
БЕЗ КОМИССИИ! Аренда офисного помещения 1800 м2 в Бизнес Центре по улице Николая Гринченко. Помещения с ремонтом после арендаторов, расположено на 4-м этаже, сдается без мебели. Планировка: зоны Open Space + ка...
11.02.2022
Этаж:
4/4
Общая
1800 м2
1 321 926 грн
Популярное на сайте

ОдессаОдесса

КиевКиев




















