Продам офисное помещение
Одесса, р-н Приморский, Довженко
ID: 5249249
8 598 080 грн
(20 472 за м2)
Этаж
1/цокольный
Тип стен
кирпич
Общая площадь
420 м2
Состояние
жилое
Тип недвижимости
Офисное помещение
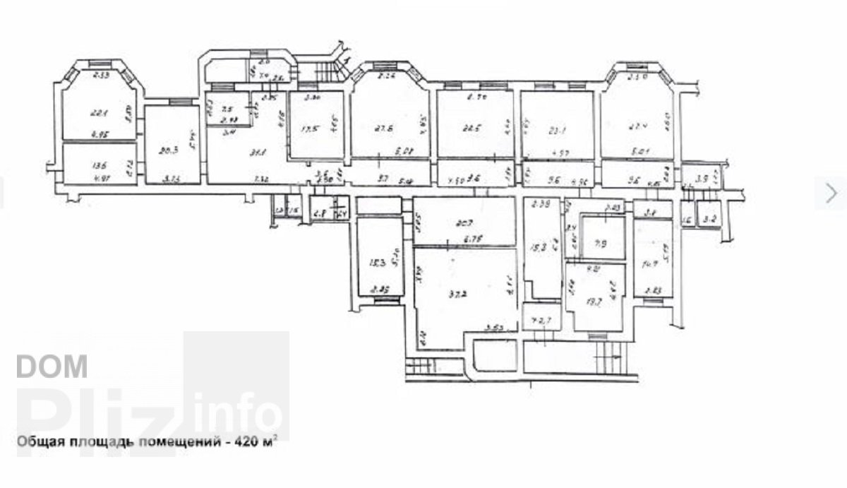
19967 Предлагаем к продаже офисное помещение в элитном комплексе "Дома Каркашадзе. Общая площадь 420 кв.м. Высокие потолки. В помещении 11 кабинетов. Есть 3 сан узла. Укомплектовано необходимой мебелью. На окнах установлены решетки. Кондиционеры. Оборудована пожарная и охранная сигнализация. Охраняемая благоустроенная территория. Развитый район. Есть возможность приобрести помещение, меньшей площади.
Обновлено: 19.12.2025
8 598 080 грн
(20 472 за м2)
200 000 $
(476 за м2)
Анна
посредник
Обновлено: 19.12.2025
Просмотренные
Предлагается к продаже нежилое помещение в Центре (подвал), ул. Еврейский. Общей площадью 410кв.м. Помещение можно разделить на 120кв.м. и 290кв.м. Два входа с фасада и со двора. Первый вход фасад с улицы Еврей...
10.01.2026
Общая
411.7 м2
3 869 136 грн
В продаже готовый бизнес в центре города. Общей площадью 830 кв.м. Состоит из отдельно стоящего, 3 этажного офисного здания площадью 430 кв.м и производственно складским помещением 400 кв.м. Просторный конферен...
10.01.2026
Этаж:
1/3
Общая
430 м2
Жилая
140 м2
Кухня
20 м2
14 401 784 грн
В продаже коммерческое помещение под любой вид деятельности в элитном доме в Приморском районе. Цокольный этаж с окнами, 8-ми этажного дома. Отдельный вход с улицы Довженко, дополнительно 2 входа со двора; Высо...
10.01.2026
Этаж:
1/8
Общая
420 м2
8 598 080 грн
Популярное на сайте

ОдессаОдесса

КиевКиев














