Сдам долгосрочно офисное помещение
Одесса, р-н Приморский, Большая Арнаутская
ID: 5250126
83 831 грн
Этаж
1/цокольный
Тип стен
кирпич
Общая площадь
195 м2
Состояние
жилое
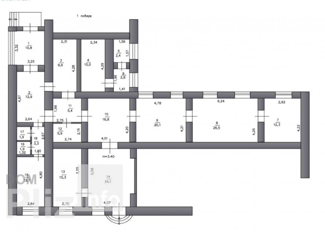
26645. Сдам фасадное офисное помещние на Большой арнаутской. Фасадный вход и три фасадных окна. 6 кабинетов, зал, кухня, 2 санузла. Потолки 3.4 м. Есть выход во двор. Система кондиционирования, газовый котёл.
Обновлено: 19.12.2025
83 831 грн
1 950 $
Анна
посредник
Обновлено: 19.12.2025
Просмотренные
24716. Сдам офис в бизнес центре Наполеон на Успенской. Общая площадь 191,7 кв.м. Распланировано на 5 отдельных кабинетов, зал, санузел и кухню. Ремонт. Охрана, паркинг.Также есть и другие площади. 8$ кв.м....
19.12.2025
Этаж:
1
Общая
192 м2
66 205 грн
18355. Просторное офисное помещение в бизнес центре Ольвия. Общая площадь 200 кв.м. Два офиса по 100 кВ.м. Вход и фасад на Греческую площадь +выход-вход со стороны Вице-адм. Жукова 17/19. План по помещению - 6-...
19.12.2025
Этаж:
1
Общая
200 м2
128 971 грн
Популярное на сайте

ОдессаОдесса

КиевКиев














