Сдам долгосрочно офисное помещение
Киев, р-н Подольский, Ильинская ул., 8
ID: 5262575
359 615 грн
Кол-во помещений
7
Этаж
5/6
Тип стен
кирпич
Общая площадь
500 м2
Состояние
жилое
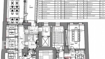
Аренда современного офиса в центре Киева в Бизнес Центре класса " В + " по адресу улица Ильинская. Этаж 5/6 этажного нежилого здания. Полезная площадь офиса 425.5 м2. Арендуемая площадь 489.33 м2 ( 15 % коэффициент BOMA ). Фотографии и планировка соответствуют реальности. Планировка - open space + рабочие зоны + кабинеты/переговорные, кухня, санузлы, кладовки, серверная. Состояния - современный ремонт. Офис оснащен всем необходимым для комфортной и безопасной работы. Отличная транспортная развязка, в пешей доступности остановка общественного транспорта и станции метро Контрактовая Площадь и Почтовая Площадь 5 минут пешком.Вакантность в этом БЦ - 298 м2, 431 м2, 489 м2.Оснащения Бизнес Центра:1. Система приточно-вытяжной вентиляции.2. Система кондиционирования.3. Оптоволоконные линии связи.4. Система контроля доступа.5. Противопожарная система безопасности.6. Круглосуточная физическая охрана.7. Видеонаблюдение (периметр, холл, лифты, места общего пользования, парковка).8. Лифты - по 2 шт., фирмы OTIS, в каждом парадном.9. Подземный паркинг и наземная парковка.10. Генератор.Коммерческие условия:Арендная ставка - 17 $/м2 с эксплуатации + НДС + коммунальные услуги.Номер оголошення на сайті компанії: RC-161-488-DP.
Обновлено: 02.02.2026
359 615 грн
8 400 $
Радион Попов
посредник
Обновлено: 02.02.2026
Просмотренные
Аренда современного офиса в центре Киева на Подоле в Бизнес Центре класса " В + " по адресу улица Спасская. Этаж 5/5 этажного нежилого здания. Общая площадь офиса 507 м2. Фотографии и планировка соответсвуют ре...
02.02.2026
Этаж:
5/5
Общая
500 м2
479 487 грн
Аренда современного офиса в центре Киева в Бизнес Центре класса " А " по адресу улица Нижний Вал. Этаж 2/6 этажного нежилого здания. Общая площадь офиса 500 м2. Фотографии и планировка соответствуют реальности....
02.02.2026
Этаж:
2/6
Общая
500 м2
385 302 грн
Аренда стильного офиса в центре Киева в Бизнес Центре класса " В " по адресу Контрактовая площадь. Этаж 2/5 этажного нежилого здания. Общая площадь офиса 501 м2. Фотографии и планировка соответствуют реальности...
02.02.2026
Этаж:
2/5
Общая
500 м2
513 736 грн
Аренда просторного офиса в центре Киева в Бизнес Центре класса " В + " по адресу улица Петра Сагайдачного. Этаж 4/9 этажного нежилого здания. Полезная площадь офиса 430.50 м2. Арендуемая площадь 495.08 м2 ( 15 ...
02.02.2026
Этаж:
4/9
Общая
500 м2
539 422 грн
Популярное на сайте

ОдессаОдесса

КиевКиев


















