Продам 3-комнатную квартиру
Полтава, р-н Подольский, Головко ул.
ID: 5273092
2 364 472 грн
(27 494 за м2)
Кол-во комнат
3
Этаж
6/10
Тип стен
кирпич
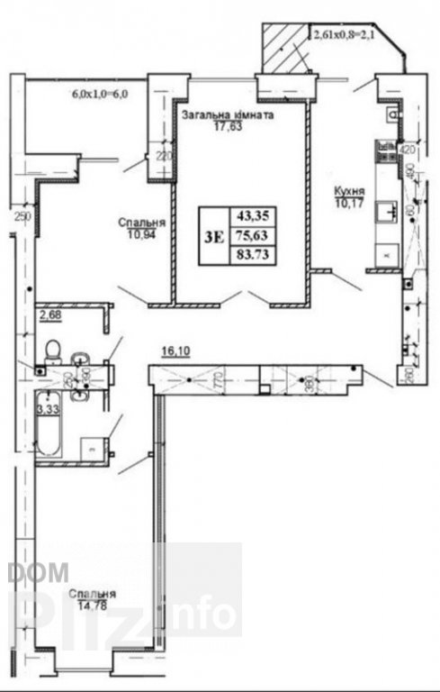
Общая площадь
86 м2
Кухня площадь
12 м2
Состояние
жилое
Тип недвижимости
Вторичный рынок
3-комнатная квартира в новострое,Левада. Этаж 6/10 Общая площадь 86кв.м. Индивидуальное отопление. Состояние после строителей.
Создано : 11.01.2026
2 364 472 грн
(27 494 за м2)
55 000 $
(640 за м2)
Андрей
посредник
Создано : 11.01.2026
Просмотренные
Продам 3-х кімнатну квартиру, Поділ, вул. Анатолія Кукоби.Продам 3-х кімнатну квартиру на Подолі. Загальна площа 79,9 кв.м., окремі кімнати, центральне опалення. Поверх 3u002F3 цегляного будинку, не кутова, є м...
11.01.2026
Комнат
3
Этаж:
3/3
Общая
79 м2
Кухня
7 м2
2 149 520 грн
Продам квартиру 90 кв. м в новому цегляному будинку. 1 поверх, не кутова. Ремонт робили з дизайнером, враховуючи кожну деталь. Велика кухня студія і дві окремі кімнати, велика гардеробна шафа, окремий санвузол,...
11.01.2026
Комнат
3
Этаж:
1/10
Общая
89 м2
Кухня
36 м2
5 029 877 грн
Продам 3х кімн квартиру на Леваді. Продам 3х кімн кв на Леваді, Олександра бідного 16. 2016 р здача! Все що є на фото залишається в кв Торг можливий. Вид обєкта: Новобудова; Тип будинку: Житловий фонд 2011-2020...
11.01.2026
Комнат
3
Этаж:
3/10
Общая
88 м2
Кухня
16 м2
4 213 016 грн
Популярное на сайте

ОдессаОдесса

КиевКиев









