Сдам долгосрочно офисное помещение
Киев, р-н Шевченковский, Січових Стрільців, 82
ID: 5274601
185 658 грн
Этаж
17/18
Тип стен
кирпич
Общая площадь
207 м2
Состояние
жилое
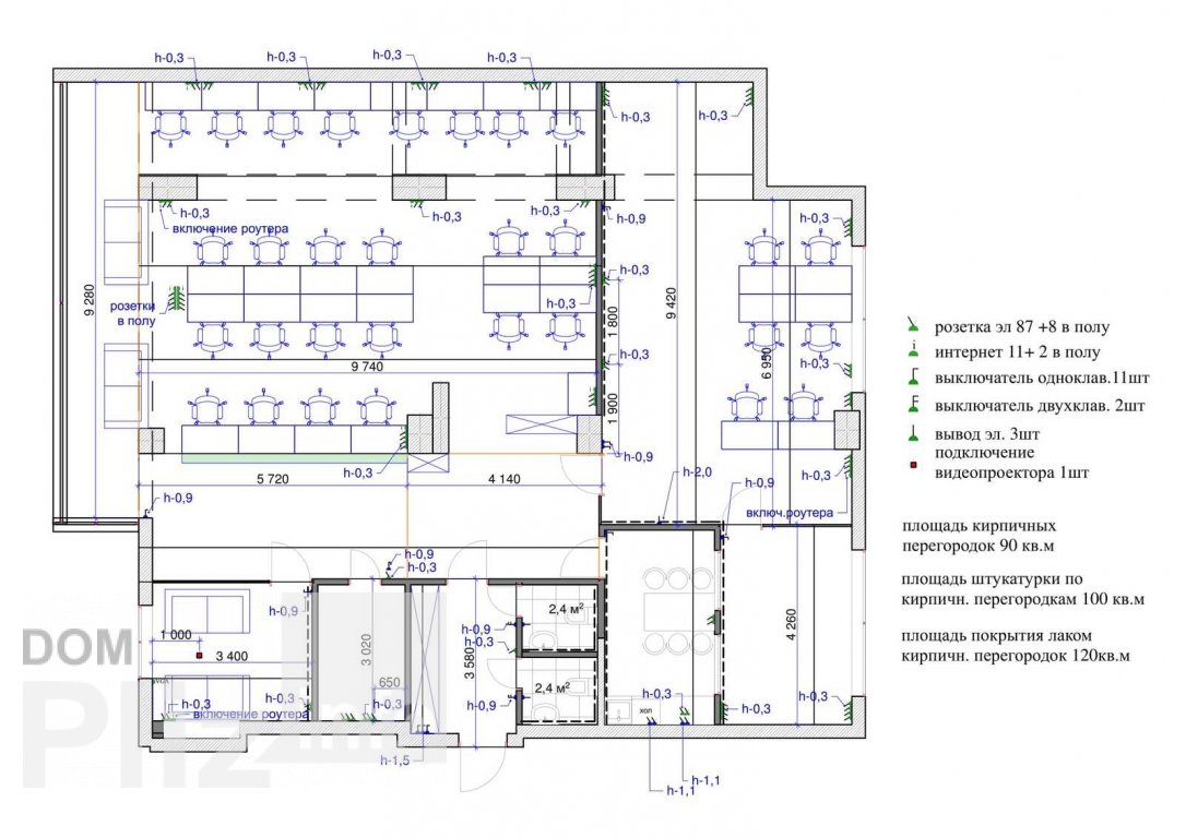
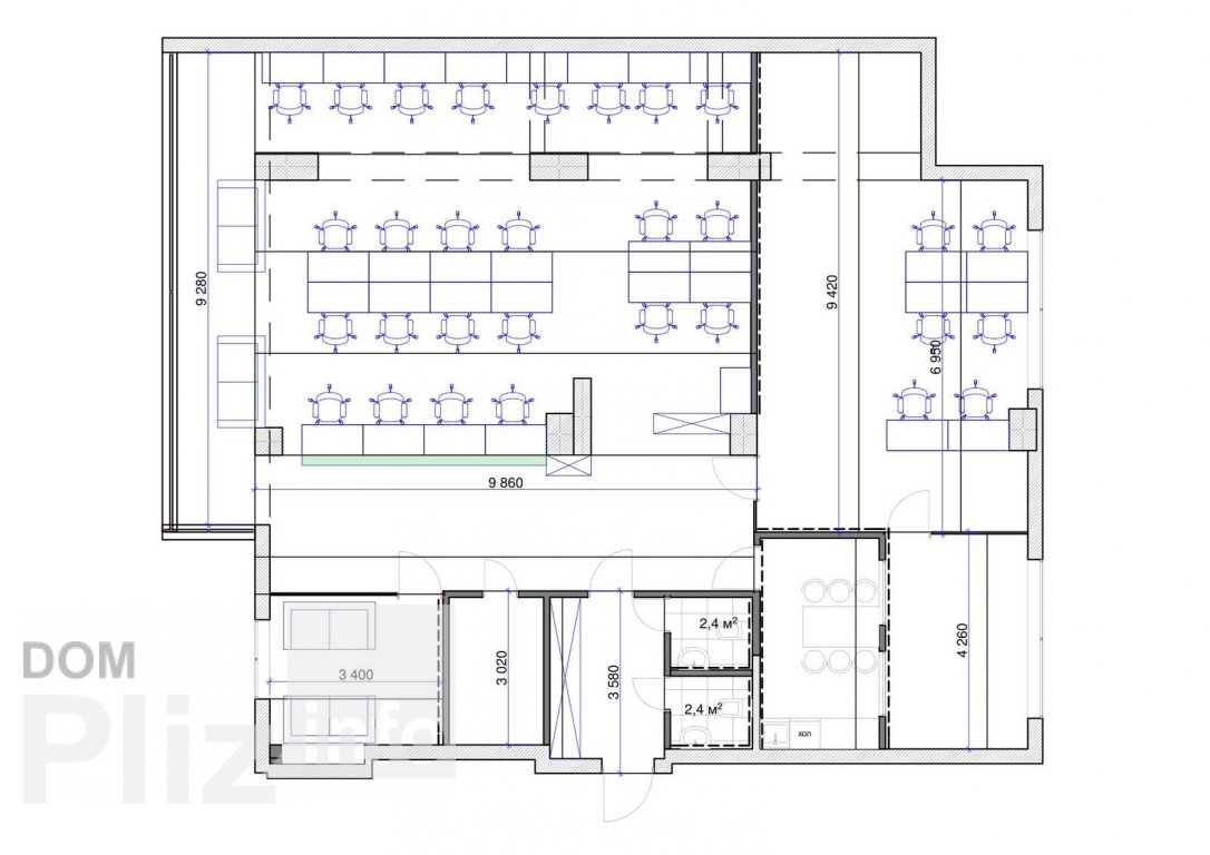
Оренда видового, мебльованого офісу з терасою в безпосередній близькості від станції метро Лукьянівська. ЖК Андерсен, вул. Січових Стрільців. Офіс двох рівневий 17-й поверх - 207,4 м2, 18-й поверх - 39,4 м2. Дуже красивий краєвид + видова тераса бонусом. Нежитловий фонд. Висота стель - 3м. Офіс мебльований на 33 робочих місця. В офісі встановлено систему кондиціонування, рекуператор, елекролічильник, теплолічильник, лічильник на воду. Офіс ідеально підходить для ІТ компаній, дизайн-студій, архітекторів, юридичних та консалтингових компаній. Вартість оренди еквівалент 4300 у.о/міс. Пропозиція без комісії для орендаря.
Создано : 14.01.2026
185 658 грн
4 300 $
Віктор
посредник
Создано : 14.01.2026
Просмотренные
Сучасний офіс площею 200 м2 з окремим входом на першому поверсі. Просторий open space з функціональними перегородками, облаштована кухня, два санвузли, затишна переговорна кімната. Офіс ідеально підходить для к...
14.01.2026
Этаж:
1/5
Общая
200 м2
64 764 грн
Оренда офісу вул. Салютна в БЦ Євротаун, ЖК Файна Таун. Офіс в оренду в бізнес-центрі Євротаун, вул. Щербаківського, 45А, Шевченківський район Києва. Бізнес-центр розташований в 3х хвилинах від ЖК Файна Таун. У...
14.01.2026
Этаж:
3/4
Общая
210 м2
111 974 грн
Нова окрема будівля в безпосередній близькості від станції метро Політехнічний інститут 3 хвилини. Вакантна площа – 200 м2. Свої сан вузли. Зроблено новий якісний ремонт, планування оупен спейс та кабінети, сво...
14.01.2026
Этаж:
3/4
Общая
200 м2
300 грн
Аренда просторного офиса в центре Киева в Бизнес Центре класса " В " по адресу улица Богдана Хмельницкого. Этаж 6/6 этажного нежилого здания. Общая площадь офиса 210 м2. Фотографии и планировка соответствуют ре...
03.01.2026
Этаж:
6/6
Общая
200 м2
200 769 грн
Популярное на сайте

ОдессаОдесса

КиевКиев






























