Продам 2-комнатную квартиру
, Тургенево, Довженка О. вул.
ID: 5276437
2 482 062 грн
(56 411 за м2)
Кол-во комнат
2
Этаж
3/5
Тип стен
кирпич
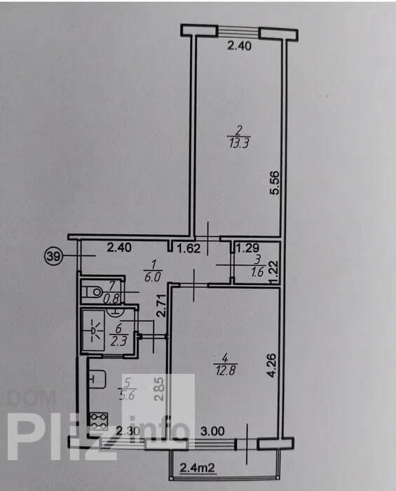
Общая площадь
44 м2
Кухня площадь
5.6 м2
Состояние
жилое
Тип недвижимости
Вторичный рынок
2 кімнатна квартира 3 пов. з 5 панельного будинку Двохстороння, дуже тепла та затишна Капітальний ремонт Металопластикові вікна, панорамний балкон, броньовані двері Вмістка гардеробна; Якісне освітлення, датчики руху Замінена вся електропроводка, труби та каналізація Італійська сантехніка; Роздільний санвузол, гігієнічний душ Гідромасажний душовий бокс Пралка/сушарка (2в1) Меблі та техніка залишаються Заведений Інтернет та кабельне телебачення Охорона(сигналізація)
Создано : 14.01.2026
2 482 062 грн
(56 411 за м2)
57 200 $
(1 300 за м2)
Оксана
посредник
Создано : 14.01.2026
Просмотренные
Продається затишна 2-кімнатна квартира в центральній частині міста Південний бульвар, 38. Пропоную до вашої уваги чудовий варіант для комфортного проживання або вигідної інвестиції. Квартира розташована на 7-м...
16.01.2026
Комнат
2
Этаж:
7/9
Общая
50 м2
3 349 916 грн
Продам квартиру в центрі Івано-Франківська, вул. Івана Франка, 10. Квартира на 2 поверсі. Вікна виходять у затишний внутрішній двір, а також на вулицю Франка. Тихе та комфортне місце в центрі міста. Планування:...
14.01.2026
Комнат
2
Этаж:
2/5
Общая
46 м2
Кухня
7 м2
2 907 311 грн
Продаю двокімнатну квартиру на 2 поверсі (площа 45 м.кв.) в центрі Івано-Франківська (100 м. До міського озера) в новому будинку від Благо, в якому вже проживають люди. Будинок має підземний паркінг для автомоб...
14.01.2026
Комнат
2
Этаж:
2/11
Общая
45 м2
Кухня
12 м2
2 994 096 грн
Продається 2х кімнатна квартира на Івана Павла 2, м-р Каскад . Чудове розташування поруч Епіцентр Арсен, АТБ, Зупинка, Школа. Знаходиться на 5 поверсі з 9 , центральне опалення. Квартира Готова щоб заїхати т...
14.01.2026
Комнат
2
Этаж:
5/9
Общая
52 м2
Кухня
9 м2
2 226 046 грн
Популярное на сайте

ОдессаОдесса

КиевКиев















