Продам офисное помещение
Киев, р-н Голосеевский, Большая Васильковская ул., 62/64
ID: 5278887
178 140 200 грн
(197 934 за м2)
Кол-во помещений
12
Этаж
7/8
Тип стен
кирпич
Общая площадь
900 м2
Состояние
жилое
Тип недвижимости
Офисное помещение
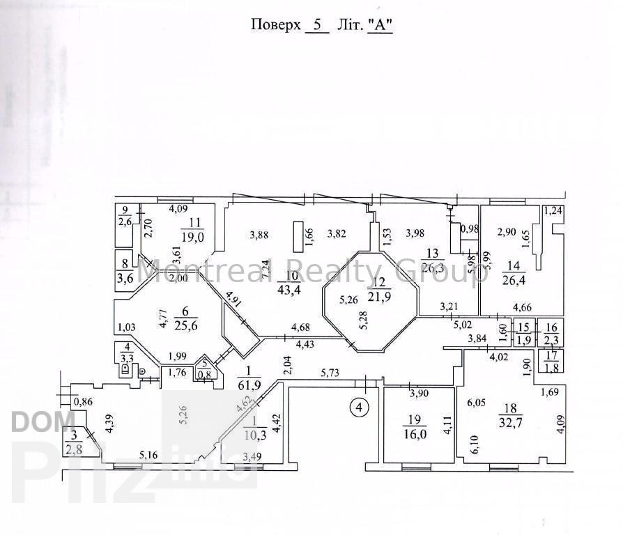
Продажа просторного офиса в центре Киева в Бизнес Центре класса " В " по адресу улица Большая Васильковская. Этаж 5-6-7/8 этажного нежилого здания. Общая площадь офиса 910.5 м2. Фотографии и планировка соответствуют реальности. Планировка - рабочие зоны + кабинеты/переговорные, кухня, санузлы, кладовки, серверная. Состояния - хороший офисный ремонт. Офис оснащен всем необходимым для комфортной и безопасной работы. Отличная транспортная развязка, в пешей доступности станция метро Олимпийская 1 минута пешком.Вакантность в этом БЦ - 305 м2, 302 м2, 303 м2, 605 м2, 910 м2.Оснащения Бизнес Центра:1. Система кондиционирования.2. Система приточно-вытяжной вентиляции.3. Оптоволоконные линии связи.4. Система контроля доступа.5. Противопожарная система безопасности.6. Круглосуточная физическая охрана.7. Круглосуточное видеонаблюдение.8. Лифты - 2 шт., фирмы OTIS.9. Подземный паркинг.Цена продажи - 3 500 000 €.Номер оголошення на сайті компанії: SC-169-606-DP.
Создано : 05.02.2026
178 140 200 грн
(197 934 за м2)
4 129 303 $
(4 588 за м2)
Радион Попов
посредник
Создано : 05.02.2026
Просмотренные
Продажа отдельно стоящего офисного здания в центре Киева по адресу улица Саксаганского. 4 этажа. Общая площадь 697 м2. Фотографии и планировка соответствуют реальности. Планировка - рабочие зоны + кабинеты/пере...
05.02.2026
Этаж:
1/4
Общая
700 м2
90 595 050 грн
Продажа современного офиса в центре Киева по адресу улица Антоновича. Этаж 3/6 этажного здания. Общая площадь офиса 250 м2. Фотографии и планировка соответствуют реальности. Планировка - open space + рабочие зо...
05.02.2026
Этаж:
3/5
Общая
250 м2
43 140 500 грн
Продажа просторного офиса в центре Киева по адресу улица Жилянская. Отдельный вход с улицы Семьи Праховых ( Гайдара ), несколько входов в помещение. Этаж 2/2 этажного нежилого здания. Общая площадь офиса 1 363 ...
05.02.2026
Этаж:
2/2
Общая
1400 м2
52 933 394 грн
Продажа просторного офиса в центре Киева по адресу улица Саксаганского. Этаж 4/6 этажного здания. Общая площадь офиса 218.8 м2. Фотографии и планировка соответствуют реальности. Планировка - рабочие зоны + каби...
05.02.2026
Этаж:
4/6
Общая
220 м2
28 041 325 грн
Популярное на сайте

ОдессаОдесса

КиевКиев




















