Сдам долгосрочно офисное помещение
Киев, р-н Шевченковский, Телиги Елены ул., 6
ID: 5278938
1 003 691 грн
Кол-во помещений
8
Этаж
2/5
Тип стен
кирпич
Общая площадь
1400 м2
Состояние
жилое
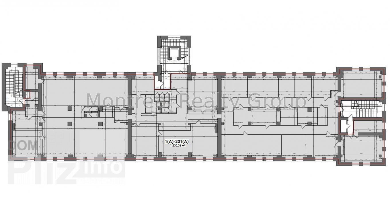
Аренда просторного офиса в Бизнес Центре класса " В " по адресу улица Елены Телиги. Этаж 2/5 этажного нежилого здания. Полезная площадь офиса 1 230.36 м2. Арендуемая площадь 1 390.31 м2 ( 13 % коэффициент BOMA ). Фотографии и планировка соответствуют реальности. Планировка - open space + рабочие зоны + кабинеты/переговорные, кухня, санузлы, кладовки, серверная. Состояния - хороший офисный ремонт. Офис оснащен всем необходимым для комфортной и безопасной работы. Отличная транспортная развязка, в пешей доступности остановка общественного транспорта и станция метро Дорогожичи 5 минут пешком.Вакантность в этом БЦ - 353 м2, 732 м2, 1 390 м2.Оснащения Бизнес Центра:1. Система приточно-вытяжной вентиляции.2. Система кондиционирования.3. Автономное отопление.4. Оптоволоконные линии связи.5. Система контроля доступа.6. Противопожарная система безопасности.7. Круглосуточная физическая охрана.8. Видеонаблюдение (периметр, холл, лифты, места общего пользования, парковка).9. Лифты - 4 шт., фирмы OTIS.10. Большая наземная парковка.11. Генератор.Коммерческие условия:Арендная ставка - 16.72 $/м2 с эксплуатации + НДС + коммунальные услуги.Номер оголошення на сайті компанії: RC-163-195-DP.
Создано : 05.02.2026
1 003 691 грн
23 250 $
Радион Попов
посредник
Создано : 05.02.2026
Просмотренные
Оренда офісу 193 м2 в бізнес центрі. Обєкт комерційної нерухомості, Клас B, Приміщення в офісному центрі, Офісне приміщення.на 4 поверсі, У будівлі 9 поверхів. Опалення центральне. Є санвузол. Кондиціонер. Буді...
05.02.2026
Этаж:
4/9
Общая
1799 м2
89 950 грн
Офіснй блок в БЦ, 10 кабінетів, 590 м.кв., генератор, метро Дорогожичі. Автономне енергозабезпечення в БЦ, за окрему плату, можливе підключення дизельного генератора до офису! Також на даному об`єкті встановлен...
05.02.2026
Этаж:
4/5
Общая
590 м2
300 грн
Офіс в БЦ, 5 кабінетів, площа 163 м.кв., метро Дорогожичі. Є дизель генератор в офісному ценрі, який підключено до котельної та загальних зон. Цей офіс також можна підключити до автономного енергозабезпечення, ...
05.02.2026
Этаж:
10/10
Общая
163 м2
300 грн
Оренда офісу класу Б у БЦ «Велес» на вул. Глибочицька 17. Площа - 650 м2, висота стелі 4,2 м, дуже світле, просторе приміщення, по всьому периметру - вікна! Якісний ремонт, дві переговорні, 8 кабінетів, 2 оpen-...
05.02.2026
Этаж:
3/3
Общая
650 м2
400 грн
Популярное на сайте

ОдессаОдесса

КиевКиев























