Сдам долгосрочно офисное помещение
Киев, р-н Печерский, Крестовый пер., 2
ID: 5279052
345 356 грн
Кол-во помещений
4
Этаж
9/10
Тип стен
кирпич
Общая площадь
420 м2
Состояние
жилое
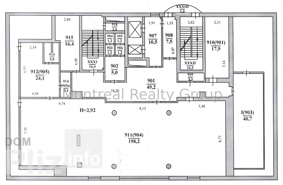
Аренда просторного офиса в центре Киева в Бизнес Центре класса " В " по адресу Крестовый переулок. Этаж 9/10 этажного нежилого здания. Общая площадь офиса 420 м2. Фотографии и планировка соответствуют реальности. Планировка - open space + кабинеты/переговорные, кухня, санузлы, серверная. Состояния - современный ремонт. Офис оснащен всем необходимым для комфортной и безопасной работы. Отличная транспортная развязка, в пешей доступности остановка общественного транспорта и станции метро Арсенальная и Кловская 5 минут пешком.Вакантность в этом БЦ - 97 м2, 208 м2, 360 м2, 170 м2.Оснащения Бизнес Центра:1. Система приточно-вытяжной вентиляции.2. Система кондиционирования.3. Оптоволоконные линии связи.4. Система контроля доступа.5. Противопожарная система безопасности.6. Круглосуточная физическая охрана.7. Видеонаблюдение (периметр, холл, лифты, место общего пользования, парковка).8. Лифты - 2 шт., фирмы OTIS.9. Наземная парковка.Коммерческие условия:Арендная ставка - 19 $/м2 с эксплуатации + НДС + коммунальные услуги.Номер оголошення на сайті компанії: RC-122-683-DP.
Создано : 05.02.2026
345 356 грн
8 000 $
Радион Попов
посредник
Создано : 05.02.2026
Просмотренные
Аренда стильного офиса в центре Киева по адресу улица Большая Васильковская. Этаж 2/5 этажного здания. Общая площадь офиса 420 м2 + 60 м2 терраса. Фотографии и планировка соответствуют реальности. Планировка - ...
05.02.2026
Этаж:
2/5
Общая
420 м2
604 373 грн
Аренда офиса БЕЗ РЕМОНТА в центре Киева в Бизнес Центре класса " А + " по адресу улица Лавраская. Этаж 2/4 этажного нежилого здания. Общая площадь офиса 420 м2. Фотографии и планировка соответствуют реальности....
05.02.2026
Этаж:
2/4
Общая
420 м2
461 914 грн
Аренда просторного офиса в центре Киева в Бизнес Центре класса " А " по адресу улица Мечникова. Этаж 17/33 этажного нежилого здания. Полезная площадь офиса 350 м2. Арендуемая площадь 413 м2 ( 18 % коэффициент B...
05.02.2026
Этаж:
17/33
Общая
420 м2
535 302 грн
БЕЗ КОМИССИИ! Аренда офиса 415 м2 VIP уровня в Бизнес центре класса "В+" в центре Киева. Помещение полностью меблировано, кабинетная система планирования: 3 кабинета для руководителей, переговорная комната, ра...
11.02.2022
Этаж:
5/5
Общая
415 м2
627 253 грн
Популярное на сайте

ОдессаОдесса

КиевКиев














