Сдам долгосрочно офисное помещение
Киев, р-н Соломенский, Вацлава Гавела бул., 6Б
ID: 5279411
758 595 грн
Кол-во помещений
18
Этаж
3/7
Тип стен
кирпич
Общая площадь
1400 м2
Состояние
жилое
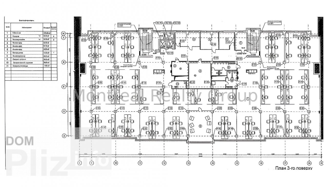
Аренда стильного офиса в новом Бизнес Центре класса " В + " по адресу Бульвар Валцава Гавела. Этаж 3/7 этажного нежилого здания. Общая площадь офиса 1 406 м2. Фотографии и планировка соответстуют реальности. Планировка - open space + рабочие зоны + кабинеты/переговорные, кухня, санузлы, кладовки, серверная. Состояния - стильный ремонт и мебель. Офис оснащен всем необходимым для комфортной и безопасной работы. Отличная транспортная развязка, в пешей доступности остановка общественного транспорта и станция метро Берестейская 15 минут пешком.Вакантность в этом БЦ - 1 406 м2, 1007 м2, 1 118 м2, 2 125 м2, 3 531 м2.Оснащения Бизнес Центра:1. Система приточно-вытяжной вентиляции.2. Система чиллер-фанкойл.3. Автономное отопление.4. Оптоволоконные линии связи.5. Система контроля доступа.6. Противопожарная система безопасности.7. Круглосуточная физическая охрана.8. Видеонаблюдение (периметр, холл, лифты, места общего пользования, парковка).9. Лифты - 3 шт., фирмы OTIS.10. Подземный паркинг и наземная парковка.11. Генератор.Коммерческие условия:Арендная ставка - 12.5 $/м2 с эксплуатации + НДС + коммунальные услуги.Номер оголошення на сайті компанії: RC-212-269-DP.
Создано : 05.02.2026
758 595 грн
17 600 $
Радион Попов
посредник
Создано : 05.02.2026
Просмотренные
Аренда просторного офиса в Бизнес Центре класса " В + " по адресу улица Николая Гринченко. Этаж 2/5 этажного нежилого здания. Полезная площадь офиса 759 м2. Арендуемая площадь 834.90 м2 ( 10 % коэффициент BOMA ...
12.02.2026
Этаж:
2/5
Общая
840 м2
646 530 грн
Оренда офісу в БЦ УКРНДІАГРОПРОЭКТ Солом #39;янская площа, 2.- Площа 95 кв.м., 7 поверх- Зручна локация - 10 хвилин до центрау міста, м. Вокзальная- Доступ в БЦ з 8 - 21- поруч парк, ресторани, супермаркет.Ор...
06.02.2026
Этаж:
7/9
Общая
95 м2
30 400 грн
Офіс з генератором, 800 м2. Автономне енергозабезпечення. При відключенні подачі централізованої електрики автоматично включається дизельний генератор, який забезпечує комфортну, безперебійну роботу офісу. Бізн...
07.02.2026
Этаж:
8/10
Общая
800 м2
517 грн
Оренда офісу в БЦ класу В, паркинг, метро,. Площа: 565 м2. Поверх: 2 поверх 2- поверхового - Функціональне планування: «open space», санвузли, Висота стелі 4,7 м. Інтерєр в стилі LOFT. Сучасні інженерні систем...
07.02.2026
Этаж:
2/2
Общая
565 м2
603 грн
Популярное на сайте

ОдессаОдесса

КиевКиев

































