Сдам долгосрочно офисное помещение
Киев, р-н Подольский, Спасская ул., 5
ID: 5279434
483 498 грн
Кол-во помещений
12
Этаж
5/5
Тип стен
кирпич
Общая площадь
500 м2
Состояние
жилое
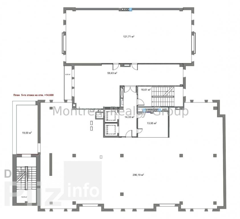
Аренда современного офиса в центре Киева на Подоле в Бизнес Центре класса " В + " по адресу улица Спасская. Этаж 5/5 этажного нежилого здания. Общая площадь офиса 507 м2. Фотографии и планировка соответсвуют реальности. Планировка - open space + рабочие зоны + кабинеты/переговорные, место для кухни, санузлы, кладовки, серверная. Состояния - современный ремонт. Офис оснащен всем необходимым для комфортной и безопасной работы. Отличная транспортная развязка, в пешей доступности станция метро Контрактовая Площадь 1 минута пешком.Оснащения Бизнес Центра:1. Система приточно-вытяжной вентиляции.2. Система кондиционирования.3. Автономное отопление.4. Оптоволоконные линии связи.5. Система контроля доступа.6. Противопожарная система безопасности.7. Круглосуточная физическая охрана.8. Видеонаблюдение.9. Лифты - 2 шт., фирмы OTIS.10. Подземный паркинг и наземная парковка.11. Генератор.Коммерческие условия:Арендная ставка - 21 $/м2 с эксплуатации + НДС + коммунальные услуги.Номер оголошення на сайті компанії: RC-210-403-DP.
Создано : 05.02.2026
483 498 грн
11 200 $
Радион Попов
посредник
Создано : 05.02.2026
Просмотренные
Аренда современного офиса в центре Киева в Бизнес Центре класса " В + " по адресу улица Ильинская. Этаж 5/6 этажного нежилого здания. Полезная площадь офиса 425.5 м2. Арендуемая площадь 489.33 м2 ( 15 % коэффиц...
05.02.2026
Этаж:
5/6
Общая
500 м2
362 624 грн
Аренда современного офиса в центре Киева в Бизнес Центре класса " А " по адресу улица Нижний Вал. Этаж 2/6 этажного нежилого здания. Общая площадь офиса 500 м2. Фотографии и планировка соответствуют реальности....
05.02.2026
Этаж:
2/6
Общая
500 м2
388 526 грн
Аренда стильного офиса в центре Киева в Бизнес Центре класса " В " по адресу Контрактовая площадь. Этаж 2/5 этажного нежилого здания. Общая площадь офиса 501 м2. Фотографии и планировка соответствуют реальности...
05.02.2026
Этаж:
2/5
Общая
500 м2
518 034 грн
Аренда просторного офиса в центре Киева в Бизнес Центре класса " В + " по адресу улица Петра Сагайдачного. Этаж 4/9 этажного нежилого здания. Полезная площадь офиса 430.50 м2. Арендуемая площадь 495.08 м2 ( 15 ...
05.02.2026
Этаж:
4/9
Общая
500 м2
543 936 грн
Популярное на сайте

ОдессаОдесса

КиевКиев




















