Сдам долгосрочно офисное помещение
Киев, р-н Подольский, Бандеры Степана пр-т, 28А
ID: 5279581
172 678 грн
Кол-во помещений
6
Этаж
8/8
Тип стен
кирпич
Общая площадь
200 м2
Состояние
жилое
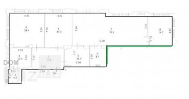
Аренда современного офиса в новом Бизнес Центре класса " В + " по адресу проспект Степана Бандеры. Этаж 8/8 этажного нежилого здания. Полезная площадь офиса 189.09 м2. Арендуемая площадь 208 м2 ( 10 % коэффициент BOMA ). Фотографии и планировка соответствуют реальности. Планировка - open space + рабочие зоны + кабинеты/переговорные, кухня, санузлы, кладовки, серверная. Состояния - современный ремонт. Офис оснащен всем необходимым для комфортной и безопасной работы. Отличная транспортная развязка, в пешей доступности остановка общественного транспорта и станция метро Почайна 15 минут пешком.Вакантность в этом БЦ - 221 м2, 867 м2, 1 514 м2, 519 м2, 674 м2 ( 1 193 м2 ), 307 м2, 208 м2, 103 м2, 292 м2.Оснащения Бизнес Центра:1. Система приточно-вытяжной вентиляции.2. Локальная система кондиционирования.3. Автономное отопление.4. Оптоволоконные линии связи.5. Система контроля доступа.6. Противопожарная система безопасности.7. Круглосуточная физическая охрана.8. Видеонаблюдение.9. Лифты - 8 шт., фирмы KONE.10. Подземный паркинг и наземная парковка.11. Генератор.Коммерческие условия:Арендная ставка - 19 $/м2 с эксплуатации + НДС + коммунальные услуги.Номер оголошення на сайті компанії: RC-218-146-DP.
Создано : 05.02.2026
172 678 грн
4 000 $
Радион Попов
посредник
Создано : 05.02.2026
Просмотренные
Оренда, Офіс 205 м2, Воздвиженка, Контрактова, Поділ. Вільне комерційне приміщення по вул. Воздвиженська, бізнес-центр. 5 поверх, з ремонтом, приміщення пропонується БЕЗ МЕБЛІВ. Планування - open-space+кухня+3 ...
05.02.2026
Этаж:
5/7
Общая
205 м2
143 500 грн
Оренда офісу 205 м2, в історичному центрі Подолу, вул. Воздвиженська. 5 поверх, офіс з ремонтом. Планування - open-space+кухня+3 кабінети+meeting room. Площа -175.3 м2, з коефіцієнтом загальних площ (1,17) - 20...
05.02.2026
Этаж:
5/7
Общая
205 м2
550 грн
Аренда просторного офиса в центре Киева в Бизнес Центре класса " В + " по адресу улица Ильинская. Этаж 6/6 этажного нежилого здания. Полезная площадь офиса 172.3 м2. Арендуемая площадь 198.15 м2 ( 15 % коэффици...
05.02.2026
Этаж:
6/6
Общая
200 м2
155 410 грн
Аренда офиса 190 м2 на Подоле по улице Воздвиженская. Помещение расположено на 1-м этаже офисного здания с отдельным входом и фасадными окнами. Планировка: 4 кабинета, большая зона рецепции, подсобное помещение...
11.02.2022
Этаж:
1/5
Общая
190 м2
114 600 грн
Популярное на сайте

ОдессаОдесса

КиевКиев
















