Продам дом
, Тутовка, Липова вул.
ID: 5285541
5 180 340 грн
(28 780 за м2)
Этажность
1/2
Тип стен
кирпич
Общая площадь
180 м2
Состояние
жилое
Тип недвижимости
Дом
Участок:
7
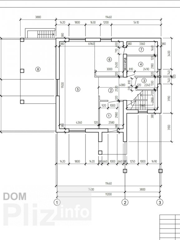
Продається сучасний цегляний будинок у процесі будівництва площею 180 м.кв з терасою 20 м.кв. та власною ділянкою 7 соток. Виконаний із якісних матеріалів, передбачено навіс на 2 авто. Будинок продуманий для комфортного проживання: у ньому будуть підведені всі необхідні комунікації та завершені фасадні роботи. Зручне розташування — неподалік міста та поруч ліс, що забезпечує тишу та свіже повітря. Ідеальний варіант для тих, хто мріє про просторий сімейний дім у сучасному стилі.
Создано : 05.02.2026
5 180 340 грн
(28 780 за м2)
120 000 $
(667 за м2)
ВІСОН агенція нерухомості
посредник
Создано : 05.02.2026
Просмотренные
Пропонується на продаж двоповерховий дуплекс у Петрикові. Будинок нової побудови, цегляний. Загальна площа 170 кв.м, 3 кімнати, кухня-студія, 2 тераси та балкон, є гараж. Земельна ділянка 4 сотих. Гарне місце р...
05.02.2026
Этажность:
1
Общая
170 м2
Участок
4
4 230 611 грн
Продається котедж у Смиківцях. Загальна площа 186 кв.м, два поверхи. Перший поверх поштукатурений, розведена проводка по всьому будинку. Встановлені металопластикові вікно, змонтоване дахове перекриття....
05.02.2026
Этажность:
1
Общая
186 м2
Участок
6
2 158 475 грн
Продається двоповерховий будинок площею 180 м #178; на ділянці 9 соток у с. Гаї Шевченківські, за кілька кілометрів від Тернополя. Цегляні та газоблокові стіни, якісний дах, металопластикові вікна, перегородки ...
05.02.2026
Этажность:
1
Общая
180 м2
Участок
9
1 705 195 грн
Популярное на сайте

ОдессаОдесса

КиевКиев

























