Продам дом
, Тутовка
ID: 5285606
3 642 455 грн
(28 019 за м2)
Этажность
1/2
Тип стен
кирпич
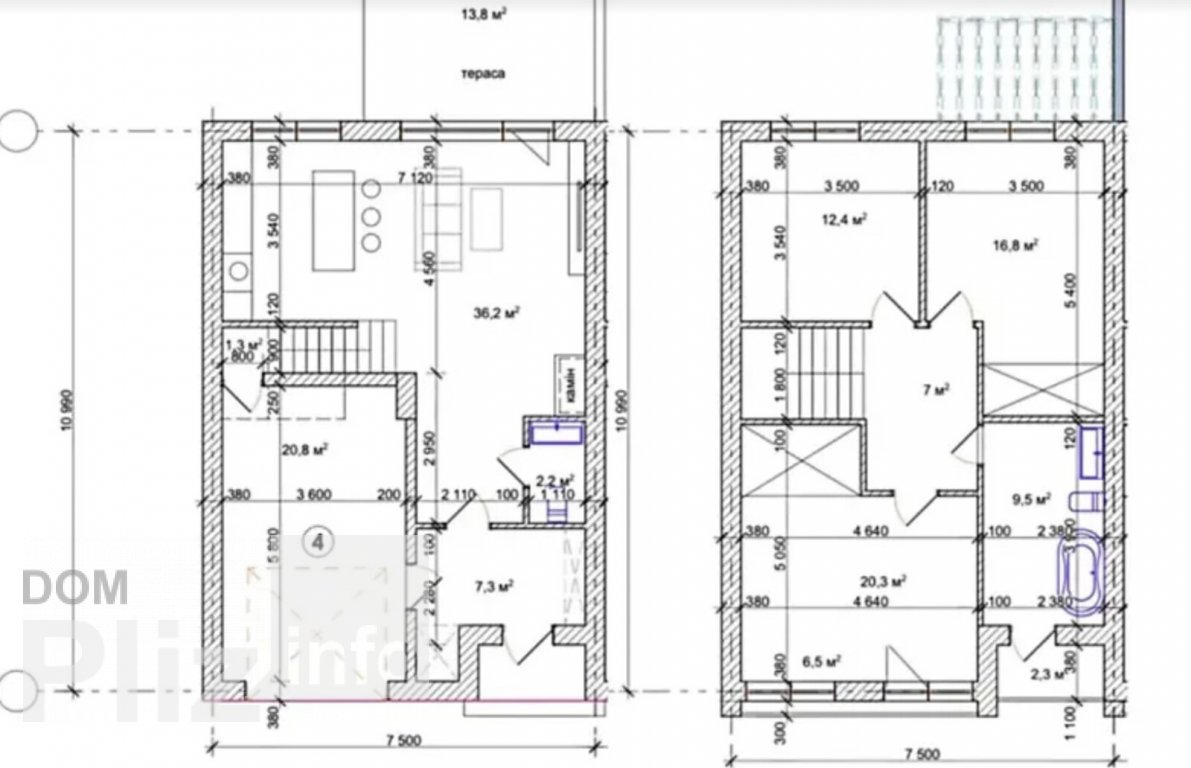
Общая площадь
130 м2
Состояние
жилое
Тип недвижимости
Дом
Участок:
2
Продається таунхаус у передмісті Тернополя, с.Біля. Таунхаус цегляний, площа 130 кв.м, два поверхи, другий не мансардний. Висота стель на першому поверсі 2,9 м, на другому - 2,7 м. Залізобетонне перекриття, утеплений дах з мембраною 6 камерні вікна Aluplas. Встановлено якісні вхідні двері та гаражні ворота. Власна свердловина, очисна споруда, автономна каналізація. Газ, вода, світло заведене у будинок. Автоматичні ворота, закрита територія Ландшафтний дизайн території, буде викладена бруківка.
Обновлено: 02.03.2026
3 642 455 грн
(28 019 за м2)
83 000 $
(638 за м2)
ВІСОН агенція нерухомості
посредник
Обновлено: 02.03.2026
Просмотренные
Продаж котеджу у ЖК West house, загальна площа 120 м2. Площа ділянки 4, 5 сотих. Цегляний будинок, ззовні утеплений. Завершують прибудинкову територію. Котедж кутовий, земельна ділянка рівної форми, накриття дл...
02.03.2026
Этажность:
1
Общая
120 м2
Участок
5
5 046 775 грн
Дуже красивий будинок поруч з містом! Пропонується на продаж обжитий будинок у Смиківцях. Двоповерховий будинок збудовано зі зрубу, загальна площа 120 кв.м, зручне та стильне планування. Будинок в гарному стані...
02.03.2026
Этажность:
1
Общая
120 м2
Участок
12
3 598 570 грн
БЕЗ КОМІСії АГЕНЦІЇ!!Продається стильний та затишний будинок з оциліндрованого брусу в Чистилові. Будинок двоповерховий, верхній поверх мансардний. Загальна площа 130.6кв.м, три спальні, просторий передпокій, ...
02.03.2026
Этажность:
1
Общая
130.6 м2
Участок
7
7 372 680 грн
Пропонується на продаж сучасний дуплекс у передмісті Тернополя, Гаї Гречинські. Загальна площа 140 кв.м, повноцінні два поверхи. Дуплекс сирий. Земельна ділянка 4,5 сотих....
02.03.2026
Этажность:
1
Общая
140 м2
Участок
4
4 827 350 грн
Популярное на сайте

ОдессаОдесса

КиевКиев

















