Сдам долгосрочно офисное помещение
Киев, р-н Соломенский, Гетьмана
ID: 5287113
259 грн
Этаж
6/10
Тип стен
кирпич
Общая площадь
2500 м2
Состояние
жилое
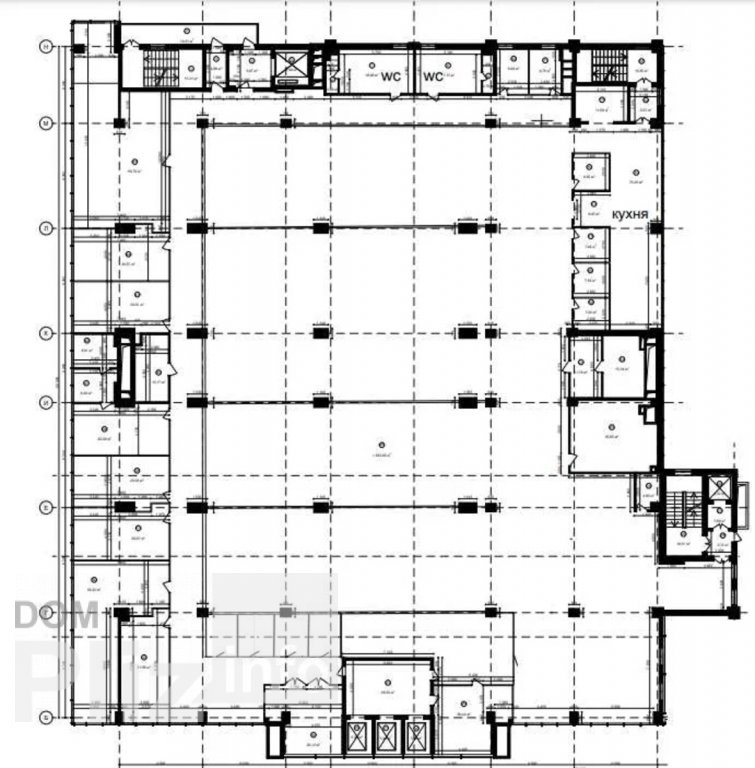
Бизнес центр Соsmo, на базе торгово-развлекательного комплекса Соsmo multimoll, предлагает офисные помещения с ремонтом Лофт и развитой инфраструктурой. Арендаторы могут пользоваться большим паркингом, ресторанами, кафе. В здании имеется комплекс из самых больших конференц залов в Киеве, а также отель, для размещения гостей и партнеров. Предлагаем офисное помещение, которое размещено на 6 этаже и занимает 2500 кв.м., с учетом коридорного коеф-та. Открытая планировка с оборудованными рабочими зонами, комнаты переговоров, отдельные кабинеты, зона рецепции, просторная оборудованная кухня, 2 больших сан. узла, гардеробная. Арендная ставка - 6 долл/метр + НДС Орех - 6 долл/кв.метр + НДС Коммунальные оплачиваются отдельно. Пропозиція без комісії.
Создано : 05.02.2026
259 грн
6 $
Віктор
посредник
Создано : 05.02.2026
Просмотренные
Аренда видового офиса в новом Бизнес Центре класса " А + " по адресу улица Соломенская. Этаж 3-4/13 этажного нежилого здания. Полезная площадь офиса 2 146.44 м2. Арендуемая площадь 2 468.40 м2 ( 15 % коэффициен...
05.02.2026
Этаж:
3/13
Общая
2500 м2
1 726 780 грн
Аренда просторного офиса в Бизнес Центре класса " В " по адресу улица Мокрая ( Кудряшова ). Этаж 3-4-5/9 этажного нежилого здания. Общая площадь офиса 2 496.1 м2. Фотографии и планировка соответствуют реальност...
05.02.2026
Этаж:
3/9
Общая
2500 м2
1 025 276 грн
Аренда просторного офиса в Бизнес Центре класса " В + " по адресу улица Вадима Гетьмана. Этаж 6/7 этажного нежилого здания. Полезная площадь офиса 2 295 м2. Арендуемая площадь 2 524.50 м2 ( 10 % коэффициент BOM...
05.02.2026
Этаж:
6/7
Общая
2500 м2
1 295 085 грн
Популярное на сайте

ОдессаОдесса

КиевКиев


























