Сдам долгосрочно офисное помещение
Киев, р-н Шевченковский, Бульварно-Кудрявська
ID: 5287130
734 грн
Этаж
1/4
Тип стен
кирпич
Общая площадь
783 м2
Состояние
жилое
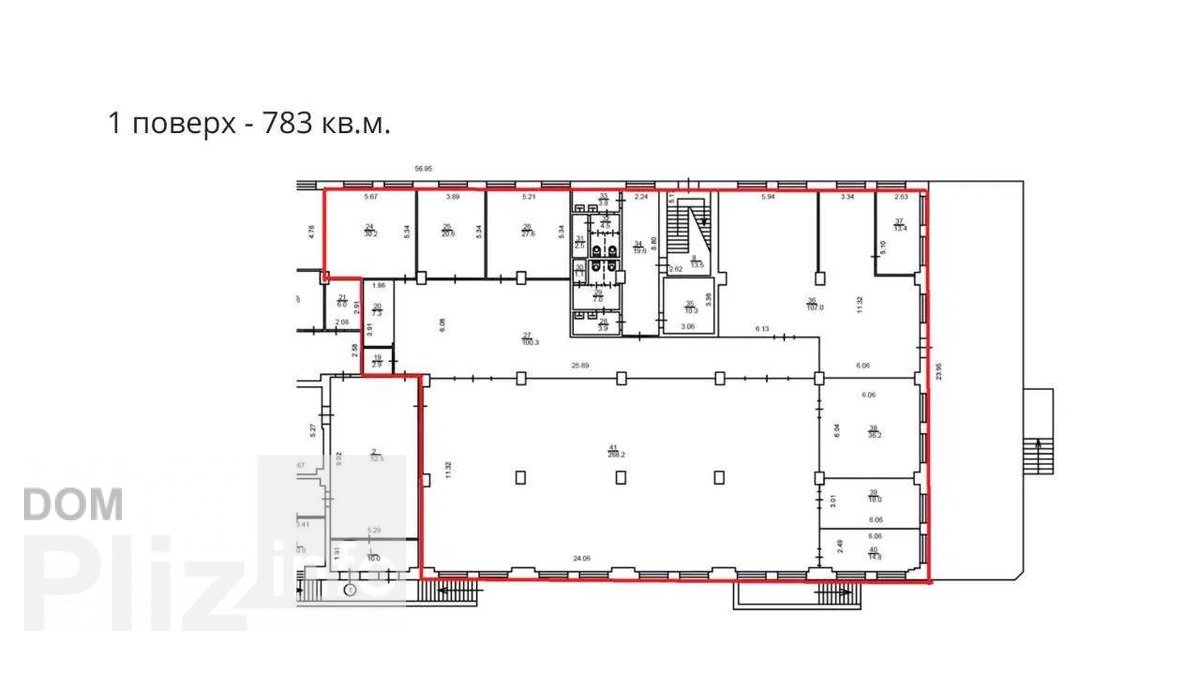
Оренда офісу в Бізнес-центрі «РЕНЕСАНС» Шевченківський район, вул. Бульварно-Кудрявська Архітектурна перлина кінця XIX століття — реконструйована будівля у стилі українського бароко з сучасним технічним оснащенням! 1 поверх | Площа — 783,1 м. З ремонтом, змішане планування Переваги локації: Посольства Франції, Німеччини, Італії, Польщі — поруч Поблизу готелі Radisson Blu, «Опера», «Либідь» Неподалік ТЦ «Україна», сквери, ресторани Зручна транспортна розвязка. Реконструкція: 2006 Ліфти: 6 Schindler Паркінг: 87 наземних + 25 підземних місць Технічне оснащення: Автономне опалення HVAC-система: припливно-витяжна вентиляція та кондиціювання Електропостачання: 2 630 кВт + UPS Генератор резервного живлення Фальшпідлога Інтернет (оптика): Волз, Датагруп, Фарлеп, Київстар Можливість підключення міні-АТС Безпека: СКУД, відеоспостереження Протипожежна система, гідранти Система мовного оповіщення Сигналізація Цілодобова охорона Умови оренди: 17 у.о./м (з ПДВ та OPEX) Комунальні платежі — за фактом споживання Ідеально для: IT-компаній Юридичних фірм Консалтингових компаній Представництв міжнародних організацій Офіс, що відповідає статусу вашого бізнесу — «Ренесанс» чекає на вас!. Пропозиція без комісії для орендаря. Відстань до найближчого міста: У місті; Cанвузол: Так; Опалення: Власна котельня; Клас офісу: Категорія B; Ремонт: Так; Комфорт: Відеоспостереження, Кондиціонер, Ліфт, Пожежна сигналізація, Підземний паркінг, Меблі на кухні, Паркувальне місце, Охорона території, Сигналізація, Автономний електрогенератор; Комунікації: Центральна каналізація, Електрика, Центральний водопровід; Інфраструктура (до 500 метрів): Відділення банку, банкомат, Аптека, Лікарня, поліклініка, Офіси, бізнес центр, Парк, зелена зона, Відділення пошти, Ресторан, кафе, бар, Супермаркет, ТРЦ;
Создано : 05.02.2026
734 грн
17 $
Віктор
посредник
Создано : 05.02.2026
Просмотренные
Аренда просторного офиса в Бизнес Центре класса " В + " улица Дегтяревская. Этаж 8/10 этажного нежилого здания. Полезная площадь офиса 700 м2. Арендуемая площадь 777 м2 ( 11 % коэффициент BOMA ). Фотографии и п...
05.02.2026
Этаж:
8/10
Общая
780 м2
319 454 грн
Аренда просторного офиса в Бизнес Центре класса " В " улица Дегтяревская. Этаж 10/10 этажного нежилого здания. Полезная площадь офиса 700 м2. Арендуемая площадь 785 м2 ( 11 % коэффициент BOMA ). Фотографии и пл...
05.02.2026
Этаж:
10/10
Общая
790 м2
338 881 грн
Аренда просторного офиса в Бизнес Центре класса " В " улица Дегтяревская. Этаж 4/10 этажного нежилого здания. Полезная площадь офиса 704 м2. Арендуемая площадь 781.4 м2 ( 11 % коэффициент BOMA ). Фотографии и п...
05.02.2026
Этаж:
4/10
Общая
780 м2
321 613 грн
Популярное на сайте

ОдессаОдесса

КиевКиев



















