Продам дом
Килийский район, Лески, Садовая ул.
ID: 5287412
7 016 448 грн
(36 929 за м2)
Этажность
1/3
Тип стен
кирпич
Общая площадь
190 м2
Кухня площадь
65 м2
Состояние
жилое
Тип недвижимости
Дом
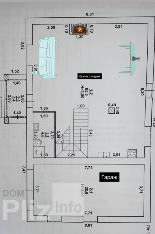
Предлагается к продаже дом в Лесках. Общая площадь 190 кв.м, два этажа. Дом введен в эксплуатацию, всё подключено: свет, вода, сделаны сантехника, электрика, проведен интернет. Толстые стены, отштукатурен полностью внутри , сделаны стеклянные перегородки в санузле и столешницы все под чистовую отделку. Теплые полы по всему 1 этажу, поставлены мраморные подоконники везде, крыша утеплена по самым передовым технологиям и эковатой, всё зашито сугубо деревом. Все окна противвандальные. Все провода по электричеству тоже самые дорогие. Все краны и инсталляции Ghore. Дом расположен на 10 сотках земли но по факту там можно забрать 15 соток так как конец дороги. Есть куплена плитка на гараж. Сделан забор и посажены 10 летние сосны. Выгребная яма сделана.Дом находится за Дерби, 5 минут до Кадорра на Сахарова пешком. Посредникам, просьба не беспокоить. ID объекта: 214538
Обновлено: 07.05.2026
7 016 448 грн
(36 929 за м2)
160 000 $
(842 за м2)
Премьер Сахарова, 24
посредник
Обновлено: 07.05.2026
Просмотренные
Продам срочно дом 2х этажный. Разделен на две части, можно под бизнес, под гостиницу. Лески возле Тартуса. Морская сторона, до моря 300 метров, два пляжа. Дом 200 м2, 5 комнат, 3 санузла, под отделочные работы,...
07.05.2026
Этажность:
1
Общая
200 м2
Кухня
30 м2
12 278 784 грн
В продаже крепкий 3-этажный дом в Суворовском районе в Лесках. Общая площадь 190 м2. Третий этаж мансардный. Дом из крымского ракушняка. Без внутренней и внешней отделки. Сухой подвал. Потолки 3 м2. Крыша допол...
07.05.2026
Этажность:
1
Общая
190 м2
Жилая
125 м2
4 078 310 грн
Предлагается к продаже просторный дом общей площадью 190 кв.м., находится в 10 минутах от Ривьеры, напротив Дерби. Дом в 2 этажа, в доме: кухня-столовая, гостиная с камином, 4 спальных комнаты, 2 санузла, выход...
07.05.2026
Этажность:
1
Общая
190 м2
Жилая
80 м2
Кухня
20 м2
10 963 200 грн
Предлагается к продаже дом в Лесках с ремонтом. Построен из газобетона, общая площадь 180 кв.м. На первом этаже кухня-гостинная и гостевая комната (кабинет), туалет, топочная (тех помещения) в котором стоит теп...
07.05.2026
Этажность:
1
Общая
180 м2
Жилая
130 м2
Кухня
15 м2
17 970 220 грн
Популярное на сайте

ОдессаОдесса

КиевКиев















