Продам 1-комнатную квартиру
Полтава, р-н Подольский, Анатолія Кукоби
ID: 5293074
1 140 748 грн
(34 568 за м2)
Кол-во комнат
1
Этаж
5/5
Тип стен
кирпич
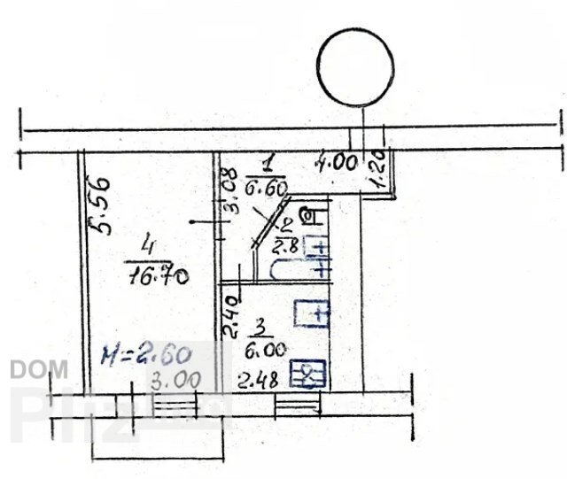
Общая площадь
33 м2
Жилая площадь
17 м2
Кухня площадь
6 м2
Состояние
жилое
Тип недвижимости
Вторичный рынок
Продаю однокімнатну охайну, теплу квартиру. Цегляний затишний будинкок. Не кутова, 5 поверх (ніхто не ходить «по головам»). в будинку виконаний капітальний ремонт всього даху, замінені на пластикові всі стояки водопроводу/каналізації, замінені труби теплотрас, встановлений будинковий лічильник тепла (це додаткова економія на оплаті опалення). В квартирі замінена сантехніка, електропроводка, встановлені металеві вхідні двері + другі внутрішні дерев`яні, двозонний лічильник електрики (день/ніч), лічильник газу, газова колонка забезпечує наявність гарячої води 24/7. Є підвал. Тихий доглянутий зелений двір, дитячий майданчик, вільна парковка, добропорядні сусіди. Біля будинку (в радіусі 100-200м) ВСЯ необхідна інфраструктура: школи, дитячі садочки, зупинка автотранспорту, різноманітні магазини, відділення банку, аптеки, бібліотека, відділення Нової пошти, салони краси, фітнес-клуб, тренажерний зал, ресторани, кафе. Поряд (5-7хв пішки): річка, невеличкий ринок, доросла та дитяча поліклініки, ветклініка, ТРЦ. Історичний мальовничий район міста, чистий, з парками, зеленими зонами, річкою, розвиненою інфраструктурою, де є все необхідне для комфортного життя та відпочинку. Квартира у власності більше 3х років. Обєкт №212819888
Обновлено: 08.02.2026
1 140 748 грн
(34 568 за м2)
26 499 $
(803 за м2)
Андрей
посредник
Обновлено: 08.02.2026
Просмотренные
#127968; Продам 1-кімнатну квартиру.Левада. Однокімнатна квартира. 7/9, площа 33 кв.м, кухня 7. Вільна. Ніхто не прописаний. Співпрацюємо за програмою Євідновлення. У власності більше трьох років..Вид обєкта: В...
08.02.2026
Комнат
1
Этаж:
7/9
Общая
33 м2
Кухня
7 м2
1 119 266 грн
#127968; Квартира однокімнатна.Квартира на Леваді. Поруч зупинка, АТБ, Маркетопт, поліклініка, школи, садочки. 7/9 33 кв. м. У власності більше трьох років.Вид обєкта: Вторинний ринок;Cанвузол: Роздільний;Опале...
08.02.2026
Комнат
1
Этаж:
7/9
Общая
33 м2
Кухня
7 м2
1 119 266 грн
Квартира в новобудові Квартира розташована на 3 поверсі 9 поверхового будинку. Не кутова. Утеплена ззовні. Будинок цегляний. Квартира загальною площею 41.3 кв.м. Складається з 1 кімнати житловою площею 14.8. кв...
08.02.2026
Комнат
1
Этаж:
3/10
Общая
41 м2
Жилая
14 м2
Кухня
12 м2
2 539 873 грн
#127968; 1-кімнатна квартира.Продам однокімнатну квартиру на Леваді. Вулиця Головка. Ліфт працює, підїзд чистий. У власності більше трьох років..Вид обєкта: Вторинний ринок;Тип стін: Панельний;Cанвузол: Розділь...
08.02.2026
Комнат
1
Этаж:
7/9
Общая
31 м2
Кухня
7 м2
1 162 315 грн
Популярное на сайте

ОдессаОдесса

КиевКиев

















