Продам 4-комнатную квартиру
Полтава, р-н Подольский
ID: 5294357
4 748 645 грн
(37 099 за м2)
Кол-во комнат
4
Этаж
9/10
Тип стен
кирпич
Общая площадь
128 м2
Кухня площадь
22 м2
Состояние
жилое
Тип недвижимости
Вторичный рынок
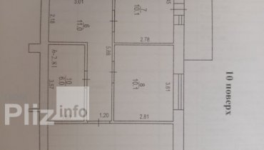
Ексклюзивна дворівнева видова квартира 128 м.кв. Чотирьохкімнатна квартира на леваді, два поверхи. У квартирі зроблено перепланування на етапі будівництва, яке оформлене у техпаспорті. На першому поверсі знаходиться санвузол, кімната під гардеробну таu002Fабо ванну кімнату, кухня-студія, а також загальна кімната. На другому поверсі великий суміжний санвузол, дві дитячі спальні та велика спальня з можливістю влаштування гардеробної. Кухня та одна дитяча має вихід на власний балкон. З вікон квартири відкривається приголомшливий вид на прирічковий парк та річку Ворскла! Квартира обладнана автономним опаленням, встановлений котел, двохтарифний лічильник електрики. В подарунок додамо просторе підсобне приміщення ( комора) між 8 і 9 поверхом. Будинок повністю зданий, вже частково заселений, знаходиться у закритому ( огороженому) дворі, має автоматичні ворота та хвіртки на ключ-доступах. Поруч з будинком знаходиться 2 школи, садочки державні та приватні, багаторівневий критий паркінг, кафе, магазини, лікарні державні та приватні, стоматологічні клініки, в радіусі 500м 4 супермаркети: Сільпо, Spar, Маркетопт, АТБ, найближча зупинка транспорту на відстані 1хв ходьби. Тобто вся необхідна для комфортного проживання інфраструктура в найближчому доступі. Ліфт у будинку спускається на 0 поверх, що дуже зручно, адже не треба долати сходи для входу і також має індивідуальний ключ-доступ. Підходить під продаж по Є-оселя. Всі документи готові..Вид обєкта: Новобудова;Тип будинку: Житловий фонд від 2021 р.;Назва ЖК: Мирний;Тип стін: Цегляний;Клас житла: Еліт;Планування: Багаторівнева;Cанвузол: 2 і більше;Опалення: Індивідуальне газове;Ремонт: Після будівельників;Меблювання: Ні;Побутова техніка: Без побутової техніки;Мультимедіа: Без мультимедіа;Комфорт: Грузовий ліфт, Гостьовий паркінг, Ліфт, Балкон, лоджія, Госп. приміщення, комора;Комунікації: Електрика, Газ, Асфальтована дорога, Центральний водопровід, Центральна каналізація;Інфраструктура (до 500 метрів): Ринок, Зупинка транспорту, Магазин, кіоск, Відділення пошти, Дитячий садок, Супермаркет, ТРЦ, Школа, Дитячий майданчик, Лікарня, поліклініка, Аптека, Ресторан, кафе, Парк, зелена зона, Відділення банку, банкомат;Ландшафт (до 1 км.): Парк, Ліс, Річка; АНГалерея Нерухомості
Создано : 05.02.2026
4 748 645 грн
(37 099 за м2)
110 000 $
(859 за м2)
Яна
посредник
Создано : 05.02.2026
Просмотренные
Продам будинок Верхоли Чудовий смарт будинок під ключ з дизайнерським ремонтом,тепла підлога ,2 свердловини,колодязь,генератор,під охороною,2 окремі участки,до річки 3 хв на машині,ліс поруч з будинком,зупинка ...
05.02.2026
Комнат
4
Общая
130 м2
5 568 866 грн
Популярное на сайте

ОдессаОдесса

КиевКиев


















