Продам офисное помещение
Одесса, р-н Приморский, Мельницкая ул.
ID: 5296107
6 143 900 грн
(46 195 за м2)
Этаж
1/3
Тип стен
кирпич
Общая площадь
133 м2
Состояние
жилое
Тип недвижимости
Офисное помещение
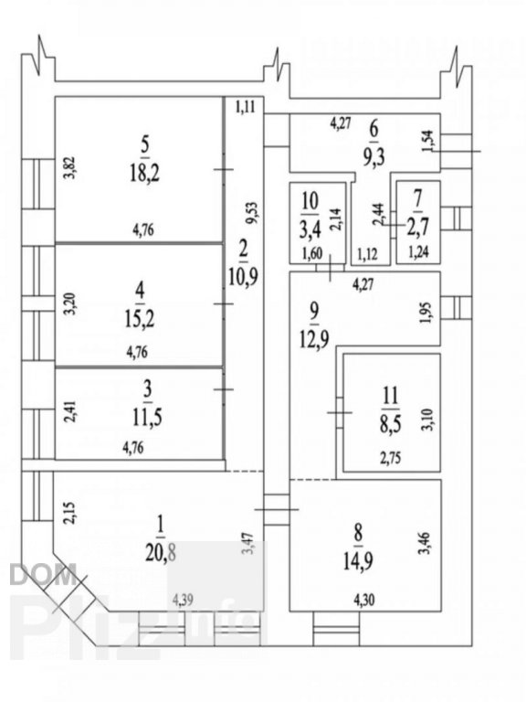
Продается фасадное нежилое помещение в центре Одессы на улице Мельницкой. Общая площадь — 133 кв.м. Отлично подойдет для медицинского центра, офиса, салона, магазина или любого другого вида коммерческой деятельности. Помещение расположено в месте с высокой проходимостью, что обеспечивает стабильный поток клиентов. Имеет фасадный вход, удобную планировку и необходимые коммуникации. Посредникам, просьба не беспокоить.
Обновлено: 29.03.2026
6 143 900 грн
(46 195 за м2)
140 000 $
(1 053 за м2)
АН Премьер Королева, 70
посредник
Обновлено: 29.03.2026
Просмотренные
32971Фасад в новом домеОбщая площадь: 142м2Первый этажПод объединениеСостояние от строителейЕсть вывод под генератор и место под генратор (во дворе), заведено оптиволкноПожарная и централизованная сигнализацияВ...
24.03.2026
Этаж:
1
Общая
142 м2
14 043 200 грн
27833. Продам помещение в Центре.Общая площадь 140 кв.м. Распланирована на 4 кабинета. Рабочее состояние. Все городские коммуникации.Отличная видимость с дороги. Подойдет под любой вид коммерческой деятелности....
21.03.2026
Этаж:
1
Общая
140 м2
8 338 150 грн
Продам коммерческое помещение под любой вид деятельности в новом доме. Общая площадь составляет 125кв.м. Выполнен современный ремонт. Панорамное и французское остекление. Видеонаблюдение. Хорошее месторасположе...
29.03.2026
Этаж:
2/18
Общая
125.1 м2
Жилая
113.8 м2
Кухня
6.2 м2
7 679 875 грн
№5541. . . Предлагаю к продаже 6-комнатную квартиру в доме памятник архитектуры в Центре. Просторная планировка. Выполнен капитальный ремонт. Была произведена замена всех коммуникаций и инженерных сетей. Устан...
21.03.2026
Этаж:
1
Общая
140 м2
6 363 325 грн
Популярное на сайте

ОдессаОдесса

КиевКиев






































