Продам 2-комнатную квартиру
Одесса, р-н Пересыпский, Балтская дорога
ID: 5296369
1 445 207 грн
(33 609 за м2)
Кол-во комнат
2
Этаж
5/5
Тип стен
кирпич
Общая площадь
43 м2
Состояние
жилое
Тип недвижимости
Вторичный рынок
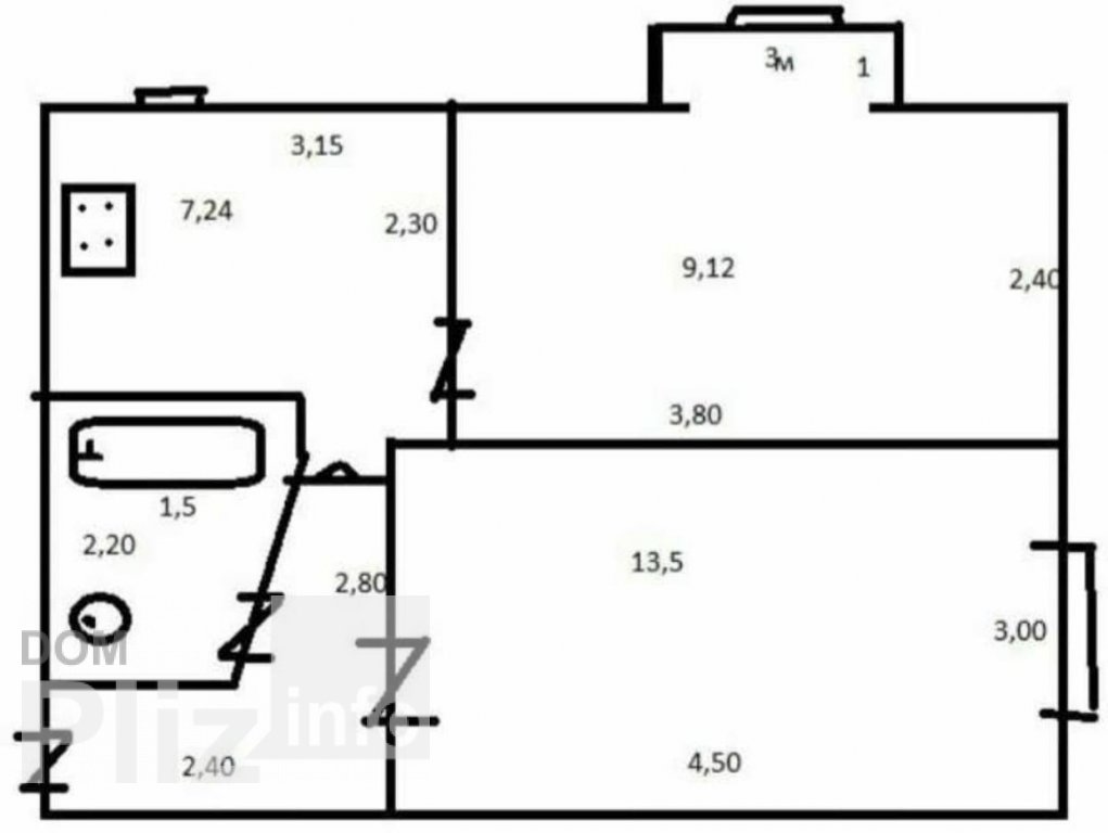
Продам двухкомнатную квартиру, недалеко от центра города. Комнаты раздельные. Из одной из комнат есть выход на увеличенный, остекленный балкон. Если ремонт, то только косметический! Сантехника вся заменена. Санузел фанерирован плиткой. Квартира светлая, сформировано пространство комфорта и уюта. Укомплектована всей необходимой мебелью. Бонусом в эту квартиру идет гараж, рядом с домом. Тихий, спокойный район. Рядом есть все необходимое для комфортного проживания.Возможна покупка в кредит от 10% годовых до 20 лет. Посредникам, просьба не беспокоить.
Обновлено: 06.02.2026
1 445 207 грн
(33 609 за м2)
33 500 $
(779 за м2)
Премьер Сахарова, 24
посредник
Обновлено: 06.02.2026
Просмотренные
Продам двухкомнатную квартиру расположенную на втором этаже пятиэтажного дома. Чистая, уютная, комнаты смежные, окна металлопластиковые, хорошая бронированная входная дверь. Санузел раздельный, балкон не застек...
06.02.2026
Комнат
2
Этаж:
2/5
Общая
45 м2
Жилая
31 м2
Кухня
5.5 м2
1 423 637 грн
Предлагается к продаже квартира на улице Черноморского казачества. Общая площадь 40 кв.м, две раздельные комнаты, расположена на первом этаже. Сделан капитальный ремонт, укомплектована необходимой мебелью и тех...
06.02.2026
Комнат
2
Этаж:
1/1
Общая
40 м2
Кухня
10 м2
776 529 грн
13-эт.дом, 52/30/8. Хорошая светлая квартира. Пристроен балкон и застеклен дерево/лак, мпо. Межкомнатная столярка дерево/лак. Полы- линолеум, с/у раздельный и облицован. Кухня плитка. Входная дверь бронированна...
06.02.2026
Комнат
2
Этаж:
1/12
Общая
51 м2
Жилая
30 м2
Кухня
8 м2
2 588 430 грн
Продается 2- комнатная квартира в Одессе. 6- этаж 9-ти этажного дома, общая площадь квартиры 50 м., жилая 30 м, площадь кухни 8 м. Капитальный ремонт, двухуровневые потолки, точечное освещение, металлопластиков...
06.02.2026
Комнат
2
Этаж:
6/9
Общая
50 м2
Жилая
30 м2
Кухня
8 м2
1 941 323 грн
Популярное на сайте

ОдессаОдесса

КиевКиев



























