Продам дом
Овидиопольский район, пгт. Таирово, Береговая ул.
ID: 5299934
6 089 244 грн
(38 058 за м2)
Этажность
1/2
Тип стен
кирпич
Общая площадь
160 м2
Жилая площадь
50 м2
Кухня площадь
40 м2
Состояние
жилое
Тип недвижимости
Дом
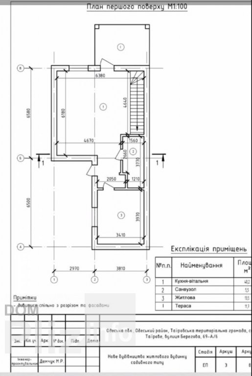
Продам готовый дом в коттеджном поселке Совиньон-3. Дом располагается на 2 сотках земли. Два уровня. Первый уровень кухня-гостиная 40 кв.м. Спальня 13 кв.м. Выход на террасу и двор. Второй уровень - две спальни. Открытый балкон 12 кв.м. Разведены коммуникации. Электрика и сантехника, газ, теплый пол, по всему дому чистовая стяжка. Установлен котел. Стены ошпаклеваны и подготовлены под чистовую отделку. Есть парковочное место под одну машину. Документы на землю готовы. Дом в эксплуатацию будет вводиться под нового собственника. Посредникам, просьба не беспокоить. ID объекта: 196812
Обновлено: 07.04.2026
6 089 244 грн
(38 058 за м2)
140 000 $
(875 за м2)
АН Премьер Королева, 70
посредник
Обновлено: 07.04.2026
Просмотренные
В продаже современный дуплекс в Дайберге площадью 150 м² на участке 3,5 сотки. Два этажа и чердак по периметру дома. Планировка: 3 спальни, гостиная, кухня-студия, 2 санузла, гардеробная и кладовая. Из кухни — ...
07.04.2026
Этажность:
1
Общая
150 м2
6 089 244 грн
Новый дом, фасадные работы завершены. Дом остеклен. Все коммуникации подключены. Городская канализация. Весь дом утеплен. Двор выложен плиткой на железо-бетонном основании. Участок огражден. Дом под внутреннюю ...
07.04.2026
Этажность:
1
Общая
150 м2
Жилая
85 м2
Кухня
17 м2
8 698 920 грн
В продаже дом под Одессой. На участке 6 соток земли расположен отдельно стоящий двухэтажный дом, двухэтажная баня и одноэтажный гостевой домик. Общая площадь дома 165м, на первом этаже гараж, просторная гостина...
07.04.2026
Этажность:
1
Общая
165 м2
Жилая
53 м2
Кухня
12 м2
6 480 695 грн
Продажа 2 этажного таунхауса с участком на 2 сотки, 157 кв.м, 5 комнат, на ул. Новороссийская, микрорайон Таирово. Предлагаем к покупке таунхаус по улице Новороссийская, Таирово общей площадью 158 кв/м - 2 сотк...
07.04.2026
Этажность:
1
Общая
157 м2
Жилая
120 м2
Кухня
25 м2
5 567 309 грн
Популярное на сайте

ОдессаОдесса

КиевКиев

















