Продам офисное помещение
Черноморск, Парусная (Героев Сталинграда) ул.
ID: 5303975
14 022 400 грн
(38 736 за м2)
Этаж
1/2
Тип стен
кирпич
Общая площадь
362 м2
Жилая площадь
211 м2
Состояние
жилое
Тип недвижимости
Офисное помещение
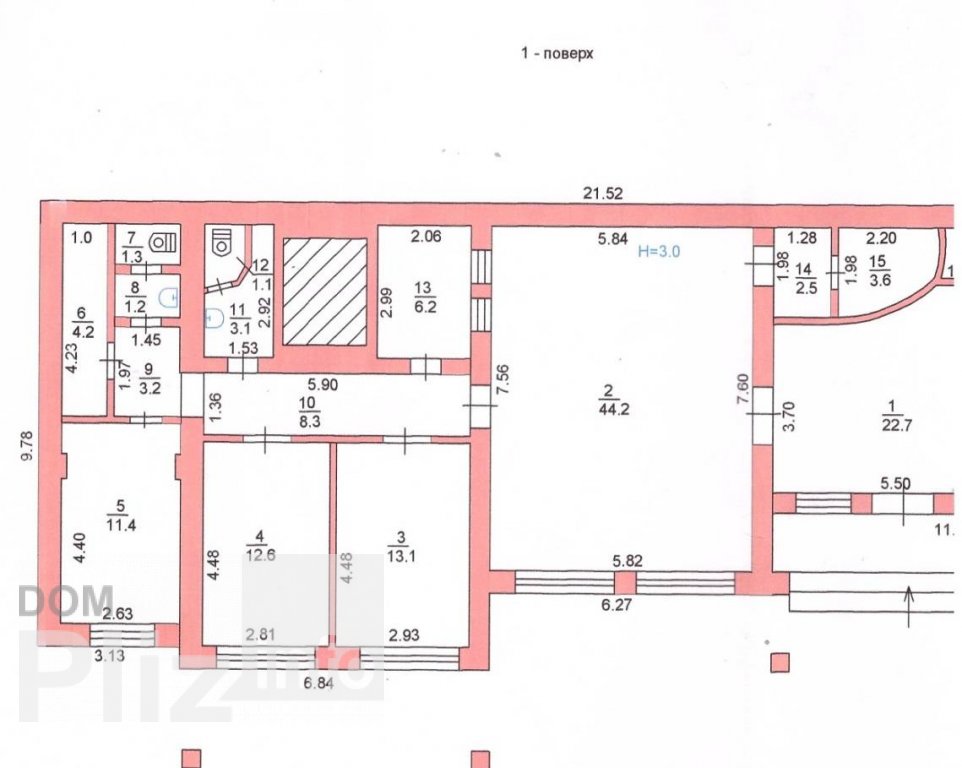
В продаже фасадное, двухэтажное помещение в г. Черноморск. Общая площадь 362 м2, из них 150,9 м2 подсобной площади и 211 м2 основной. Построено из красного кирпича. Помещение состоит из 10-и кабинетов, 4 санузла, 2 душевые комнаты и просторного фае, есть комната-сейф. Собственная котельная, чистый чердак и пожарный выход, Высота потолков 3,2 метра. Мощность - 30 кВт, 3 фазы. Помещение идеально подойдёт под: гостиницу, офис, хостел, торговые магазины, лото, ломбард, квест-комнаты, салон красоты и любых подобных сфер деятельности. Хорошая транспортная развязка и собственная парковка, облагорожена придомовая территория с палисадником. Посредникам, просьба не беспокоить.
Обновлено: 23.03.2026
14 022 400 грн
(38 736 за м2)
320 000 $
(884 за м2)
АН ПРЕМЬЕР Преображенская, 49/51
посредник
Обновлено: 23.03.2026
Просмотренные
Продается офисное помещение в АББО доме общей площадью 26 кв.м. Помещение в цоколе, сделан хороший ремонт. Санузел совмещен. Дом находится в хорошем районе, на пересечении улиц Данченко / проспект Мира. Посредн...
23.03.2026
Этаж:
1/6
Общая
26 м2
1 007 860 грн
Продается коммерческое помещение 205 кв.м. Просторное, светлое, теплое. Был сделан косметический ремонт. Годится под кафе, поликлинику, ветклинику, хостел, зубную клинику, салон красоты, банк, офис. Есть два са...
23.03.2026
Этаж:
1/9
Общая
204.7 м2
3 067 400 грн
В продаже коммерческое помещение под бизнес на цокольном этаже. Свободная планировка, море и пляж в шаговой доступности. Отличное вложение денег под бизнес. Рядом вся инфраструктура города!!! Посредникам, прось...
23.03.2026
Этаж:
1/8
Общая
61.4 м2
Жилая
41.2 м2
Кухня
20.2 м2
2 234 820 грн
В продаже 2-х этажное здание S=260 кв.м. Самый центр города. Архитектурное решение: здание имеет 2 входа на первый и второй этаж. Первый и второй этаж имеет отдельную автономию, высота потолков 3,5 метра. Отлич...
23.03.2026
Этаж:
1/2
Общая
260 м2
8 764 000 грн
Популярное на сайте

ОдессаОдесса

КиевКиев



















